EasyManua.ls Logo

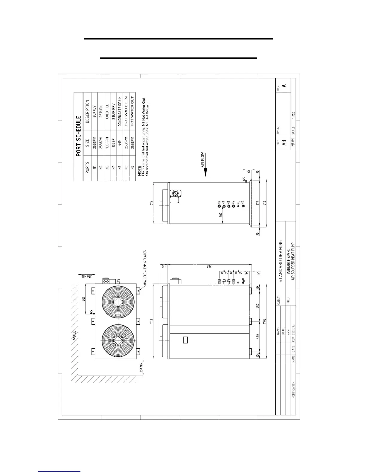
Ambient ASHP-23 - Heat Pump Location and Mounting;Schematic

Ambient ASHP-23
38 pages
Print Icon
To Next Page IconTo Next Page
To Next Page IconTo Next Page
To Previous Page IconTo Previous Page
To Previous Page IconTo Previous Page
Loading...
Page 20 of 38
Diagram/Photo Copyright AusGeothermal 2018
Heat Pump Location and
Mounting Schematic