EasyManua.ls Logo

American Standard AUD2B080AFV32A - Page 6

American Standard AUD2B080AFV32A
30 pages
Print Icon
To Next Page IconTo Next Page
To Next Page IconTo Next Page
To Previous Page IconTo Previous Page
To Previous Page IconTo Previous Page
Loading...
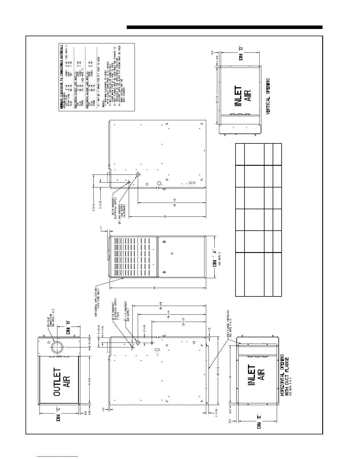
6 18-CD24D1-2
Installer’s Guide
*UD2 OUTLINE DRAWING
(ALL DIMENSIONS ARE IN INCHES)
MODEL DIM "A" DIM "B" DIM "C" DIM "D" DIM "E"
*UD2B060AFV32A
*UD2B080AFV32A
*UD2B100AFV32A
17-1/2" 9-5/8" 16-1/4" 16" 16"
*UD2C080AFV42A 21" 13-1/16" 19-3/4" 19-1/2" 19-1/2"
*UD2D120AFV52A 24-1/2" 15-5/16" 23-1/4" 23" 23"
* PREFIX LETTER MAY BE "A" OR "T"
Bottom Return ONLY

Related product manuals