EasyManua.ls Logo

Ameristar M4CXC024BA1CAAA - 9.1 CONTROL WIRING

Default Icon
24 pages
Print Icon
To Next Page IconTo Next Page
To Next Page IconTo Next Page
To Previous Page IconTo Previous Page
To Previous Page IconTo Previous Page
Loading...
17
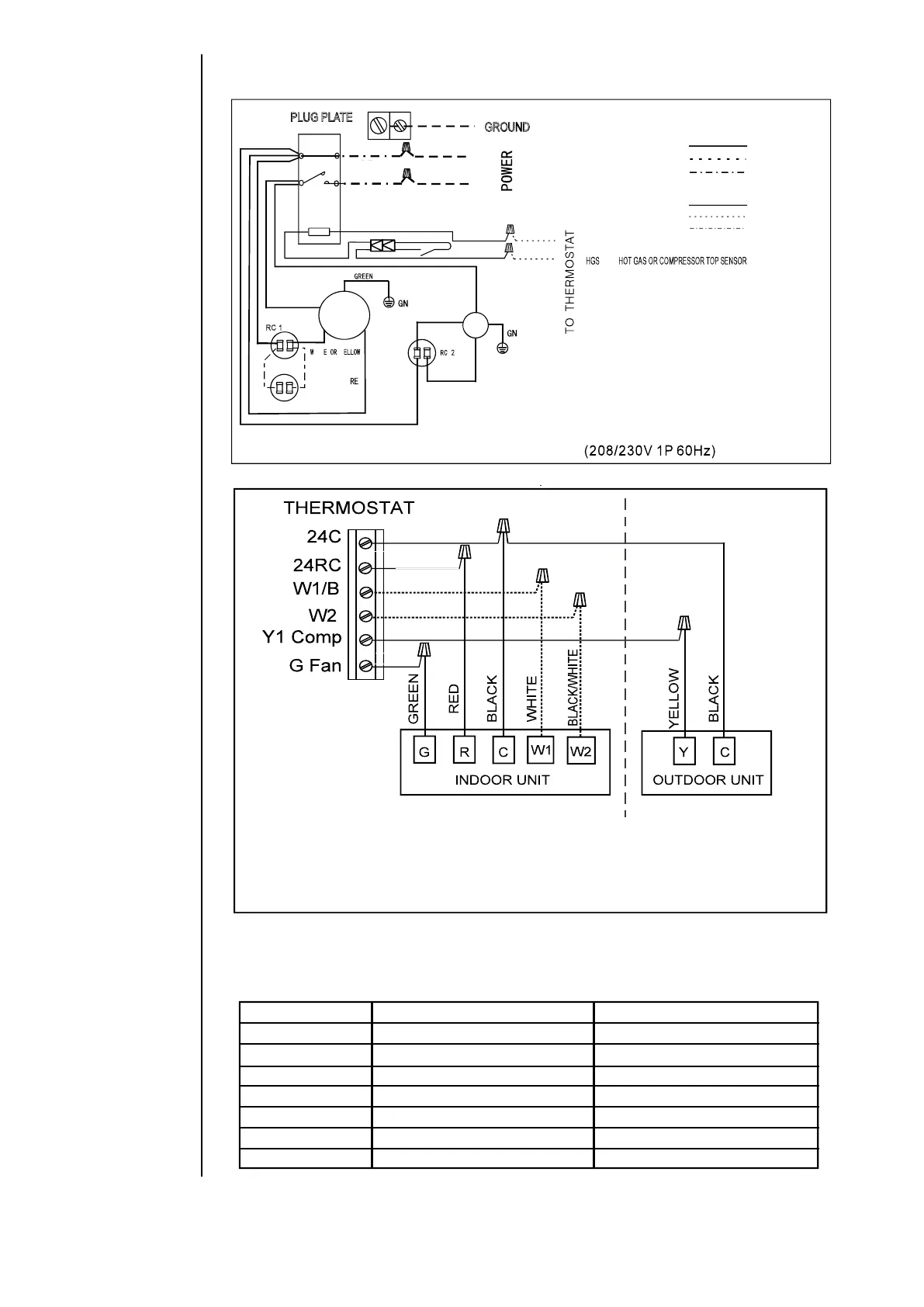
9.1 CONTROL WIRING
TABLE 4: Electrical Data:
Model
Minimum Circuit Ampacity(A) Maximum Circuit Protector(A)
18
11.9
20
24
14.4
25
30
15.2
25
36
19.9
35
42
28.2
45
48
32.0
50
60
31.1
50
Fig.12 Control Wiring
Fig.11 Outdoor Unit Wiring Diagram
CC COMPRESSOR CONTACTOR
RC 1 RUN CAPACITOR 1
RC 2 RUN CAPACITOR 2
RC 3 RUN CAPACITOR 3
COMP COMPRESSOR
C
S
R
FAN
ORANGE
BROWN
GREEN
BLACK
BLACK
BLACK
A2
A1
BLACK
YELLOW
C
Y
LINE VOLTAGE
FACTORY STANDARD
FIELD INSTALLED
OPTIONAL
LOW
FACTORY
VOLTAGE
FACTORY STANDARD
FIELD INSTALLED
FACTORY OPTIONAL
USE COPPER CONDUCTORS ONLY
WARNING: CABINET MUST BE PERMANMENTLY
GOUNDED AND ALL WIRING TO CONFORM TO
I.E.C,N.E.C,C.E.C,C.L.C,AND LOCAL CODES AS APPLICABLE
REPLACEMENT WIRE MUST BE THE SAME GAUGE AND
INSULATION TYPE AS ORIGINAL WIRE
BLACK
CC
COMP
HGS
YELLOW
BLACKBLACK
L2
L1
GROUND
PLUG PLATE
RC 3
BLACK
T1
T2
L1
L2
RED

Related product manuals