EasyManua.ls Logo

Amica EHEG 933 101 E - Installatie

Amica EHEG 933 101 E
72 pages
Print Icon
To Next Page IconTo Next Page
To Next Page IconTo Next Page
To Previous Page IconTo Previous Page
To Previous Page IconTo Previous Page
Loading...
46
INSTALLATIE
Plaatsing van het inbouwfornuis,
montage
De keukenruimte moet droog, luchtig en
goed geventileerd zijn. De plaatsing van
het inbouwfornuis moet vrije toegang
tot alle bedieningselementen mogelijk
maken.
De bekleding van de inbouwmeubelen
en de lijm waarmee hij is vastgelijmd
moeten bestand zijn tegen temperaturen
van 100°C. Als niet aan deze voorwaarde
wordt voldaan kan het oppervlak vervor-
men of de bekleding loslaten.
Het meubeldeel waarin de oven wordt
ingebouwd moet stabiel zijn bevestigd.
Meubelen die zich naast het fornuis be-
vinden en die boven het kookoppervlak
van het fornuis uitsteken, moeten zich op
een afstand van minimaal 110 mm van de
rand van de kookplaat bevinden.
Afzuigkappen moeten volgens de instruc-
ties uit de meegeleverde gebruiksaanwij-
zingen gemonteerd worden
1.1 Montage.
Hiertoe handelt u als volgt:
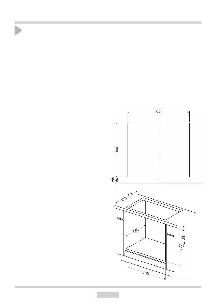
1. Maak een opening voor de montage van
de kookplaat volgens afb. 1.
2. Maak een opening in het meubel (kastje)
volgens de afmetingen uit afb. 2, voor de
montage van de oven.
3. Maak de schroeven nr. 2 uit afb. 3 los.
4. Schuif de oven voorzichtig in de opening
in het meubel (kastje) en beveilig hem
tegen verschuiven met 4 schroeven op
de plaatsen die staan aangegeven op afb. 4.
5. Til het frame met de branders op tot het
niveau van het meubelblad, schuif de
bevestigingsbeugels van het frame uit tot
de maximale grootte van de opening in
het blad en draai de schroeven nr. 3 aan.
Zorg ervoor dat de afstand tussen het
frame met de branders tot de zijranden
van de opening overal gelijk is.
6. Verschuif het frame met de branders
totdat de afstand overeenstemt met 90
mm (afb. 5) en blokkeer het frame met de
branders in deze positie met behulp van
de schroeven nr. 1 (afb. 3) in de opening
van het blad.
7. Voer de AANSLUITING OP DE GASIN-
STALLATIE EN ELEKTRISCHE INSTAL-
LATIE uit volgens het onderstaande
hoofdstuk.
8. Plaats de werkplaat op het frame met
de branders en schroef hem vast aan
de branders met 8 schroeven en de
onderleggers M-3 (afb. 5).
9. Plaats de branders en het rooster.
Afb.1
Afb.2

Related product manuals