EasyManua.ls Logo

arcelik 5845 NFEY - Your Refrigerator Components

arcelik 5845 NFEY
44 pages
Print Icon
To Next Page IconTo Next Page
To Next Page IconTo Next Page
To Previous Page IconTo Previous Page
To Previous Page IconTo Previous Page
Loading...
EN
3
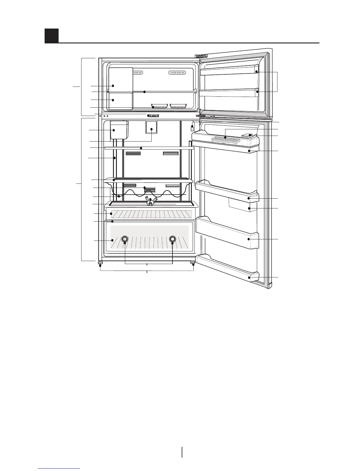
1 Your Refrigerator
1. Door shelves of the freezer compartment
2. Temperature setting indicator
3. Egg section
4. Water dispenser filling tank
5. Water dispenser reservoir
6. Door shelves of fridge compartment
7. Sliding and rotary storage containers
8. Blue light
9. Adjustable legs
10. Crisper
11. Crisper cover
12. Breakfast compartment
13. Key
14. Bottle shelf
C Figures in this user manual are schematic and may not correspond exactly to you product. If
the subject parts are not included in the product you have purchased, then it is valid for other
models.
15. Odor filter
16. Glass shelves of fridge compartment
17. Illumination glass
18. Impeller
19. Automatic Icematic water tank
20. Icebox
21. Ice storage container
22. Freezer compartment glass shelf
23. Ice-cream making machine / Quick Freeze
compartment
24. Freezer compartment
25. Fridge compartment
*optional
1
4*
3
17
*16
18
2*
16
5*
*6
*6
*6
*8
*7
9
*10
*12
11
*14
*13
*13
*15
*19
*20
*21
*23
22
24
25

Related product manuals