EasyManua.ls Logo

arcweld 130i-ST - Arcweld 160 i-ST DV; 200 i-ST DV Electrical Diagrams

arcweld 130i-ST
84 pages
Print Icon
To Next Page IconTo Next Page
To Next Page IconTo Next Page
To Previous Page IconTo Previous Page
To Previous Page IconTo Previous Page
Loading...
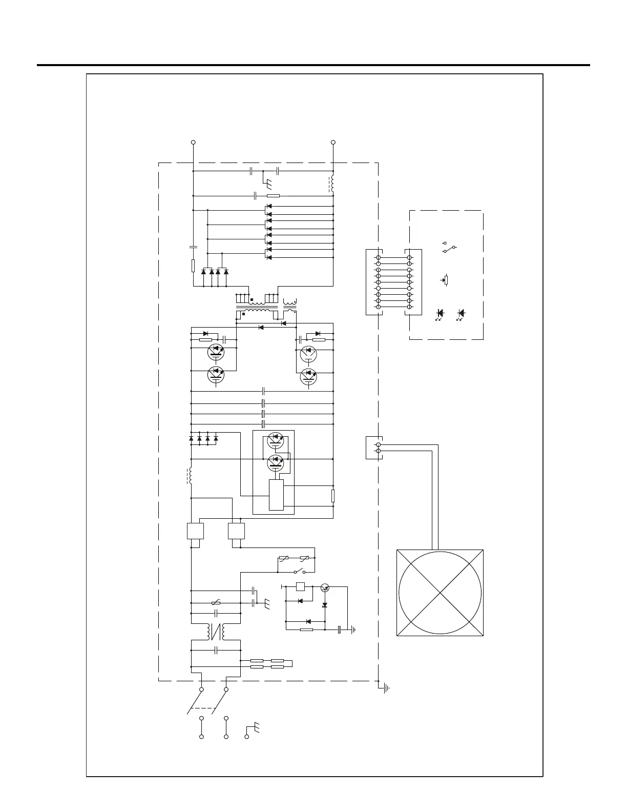
ELECTRICAL DIAGRAM
E-4 E-4
1
2
3
4
5
6
7
8
9
1
2
3
4
5
6
7
8
9
AC1
AC2
G
v
34
-t -t
1
3
-
4
+
2
1
3
-
4
+
2
15V
J
2 1
IGBT
PFC
5
6
4
1
3
4
12
7
19 2
1
9
11
10
8
20
SALIDA+
SALIDA-
LED1
LED2
Output Control
Mode Switch
VR1
SW1
1
2
RECITIFIER
120V~/ 230V~
arcweld
®
160i ST DV
arcweld
®
200i-ST DV
VISTA FRONTAL
VISTA POSTERIOR

Related product manuals