EasyManua.ls Logo

arcweld 200i-ST - Page 18

Default Icon
84 pages
Print Icon
To Next Page IconTo Next Page
To Next Page IconTo Next Page
To Previous Page IconTo Previous Page
To Previous Page IconTo Previous Page
Loading...
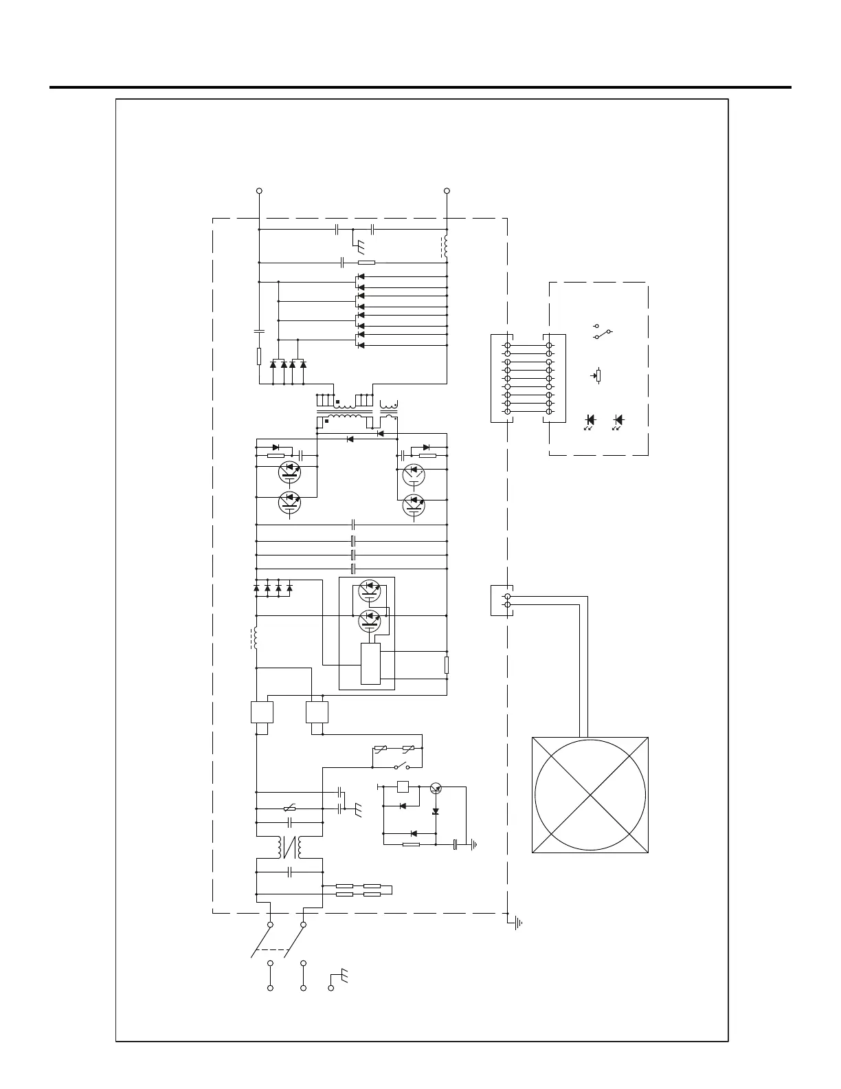
ELECTRICAL DIAGRAM
E-4 E-4
1
2
3
4
5
6
7
8
9
1
2
3
4
5
6
7
8
9
AC1
AC2
G
v
34
-t -t
1
3
-
4
+
2
1
3
-
4
+
2
15V
J
2 1
IGBT
PFC
5
6
4
1
3
4
12
7
19 2
1
9
11
10
8
20
SALIDA+
SALIDA-
LED1
LED2
Output Control
Mode Switch
VR1
SW1
1
2
RECITIFIER
120V~/ 230V~
arcweld
®
160i ST DV
arcweld
®
200i-ST DV
VISTA FRONTAL
VISTA POSTERIOR

Related product manuals