EasyManua.ls Logo

arcweld 200i-ST - Page 73

Default Icon
84 pages
Print Icon
To Next Page IconTo Next Page
To Next Page IconTo Next Page
To Previous Page IconTo Previous Page
To Previous Page IconTo Previous Page
Loading...
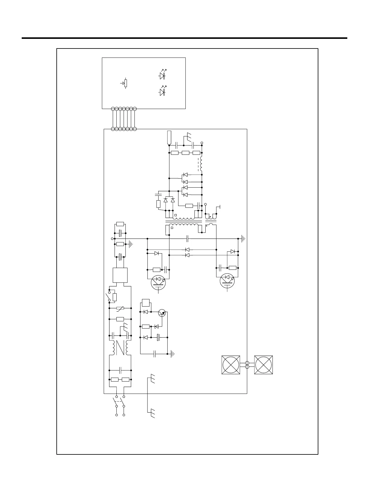
DIAGRAMA ELÉTRICO
E-3 E-3

Related product manuals