EasyManua.ls Logo

Argo DADOS 9 - PCB Drawing & Wiring Diagram

Argo DADOS 9
32 pages
Print Icon
To Next Page IconTo Next Page
To Next Page IconTo Next Page
To Previous Page IconTo Previous Page
To Previous Page IconTo Previous Page
Loading...
8
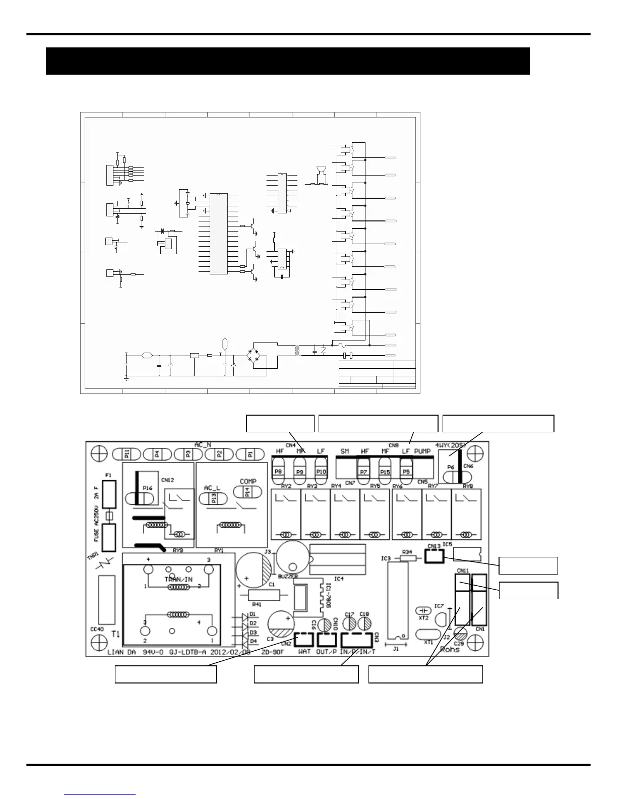
5. PCB drawing & wiring diagram
The below picture is PCB schematic:
800161-0Y-A-5-S-Q
The below picture is PCB Drawing
800161-0Y-A-5-S-Q
Motor plug
Remote control receiver
Button board
Micro switch plug Tempreature Sensor
1
1
2
2
3
3
4
4
5
5
6
6
7
7
8
8
D D
C C
B B
A A
Ti tle
Num ber Re visionSize
A3
Date: 2012-3-6 Sheet of
File: C:\Do cume nts and Setting s\..\Q J-LDT B-A.SCHDrawn By:


Editio n
Appr oval
Date
QJ - L DT B - A
DH /TE-
2012-01-03
FUSE
CC40
4
3
1
2
AC_N
AC_L
B UZZER
TNR 1
10.5V
3.15A 250V
D1-D4
+5V
IN4004
230V
C3
470uF/16V
C2
104
C1
1000uF/25V
P1
P2
+12V
TRA N/O UT
56 1
TRA N/I N
JZC3
X108
+12V
0.1uF/275AC
P4
JZC2
12 V
C4
104
X109
C5
10 4
X105
X107
X104
X106
JZC4
JZC5
JZC6
JZC7
X103
JZC8
EI41-23
JZC1
X110
12345678
910111213141516
29
IC4
I
1
O
3
G
2
I C1- 7805
P1 1
8
8
7
7
6
6
5
5
4
4
3
3
2
2
1
1
IC5
30
X102
P16
JZC9
HEATER
1
1
2
2
3
3
4
4
5
5
6
6
7
7
8
8
9
9
10
10
11
11
12
12
13
13
14
14
15
15
16
16
17
17
18
18
19
19
20
20
21
21
22
22
23
23
24
24
25
25
26
26
27
27
28
28
29
29
30
30
31
31
32
32
DIP 32
U1
1
2
3
4
CN3
1
2
3
4
5
6
7
CN1
1
2
CN10
1
2
CN2
VCC 12 V
4.99 K
R9
51 0
R34
VCC
KE Y
KE Y
51 0
R14A
P12
51 0
R13
P11
51 0
R12
P10
VCC
51 0
R4
P9
10 K
R5
VCC
VCC
10uF
C18
4. 99 K
R1
P31
VCC
4. 99 K
R2
10 uF
C17
P30
VCC
P29
10uF
C16
VCC
510
R33
VCC
10K
R26
P27
P2
P3
P5
P6
P7
P8
P9
P10
P11
P12
P13
P14
P15
P16
P29
P30
P32
P31
P27
P26
P25
P24
P23
P22
P21
P20
P19
P18
P17
510
R33
Q1
RY8
P25
P24
P23
P22
P21
P20
P19
RY9
Q3
2K
R19
1 2
XTAL
XT1
27pF
Cap
C11
27pF
Cap
C12
22 K
R40
VCC
Diode 1N 4007
D?
P5
1
2
3
KIA70 42 P
IC7
P8
P15
P16
2K
R8
VCC
VCC
104
Cap
C9
12 V
RY7
RY5
RY4
RY3
RY2
BUZ
RY1
2K
R11
BUZ
10 0
R10
12V
RY1
RY2
RY3
RY4
RY5
RY6
Q2
RY6
2K
R18
RY7
RY8
RY9
COMP
4WV
PUMP
OU T-MF
4WV
PUMP/LF
CN9-MF
OU T-HF
LF
MF
HF
CN9-HF
LF
MF
HF
15
R41
Water pump plug XL only 2way value plug XL only
LED board
PCB drawing & wiring diagram

Related product manuals