EasyManua.ls Logo

Ariston HS C 24 FF NG

Ariston HS C 24 FF NG
68 pages
To Next Page IconTo Next Page
To Next Page IconTo Next Page
To Previous Page IconTo Previous Page
To Previous Page IconTo Previous Page
Loading...
12 /
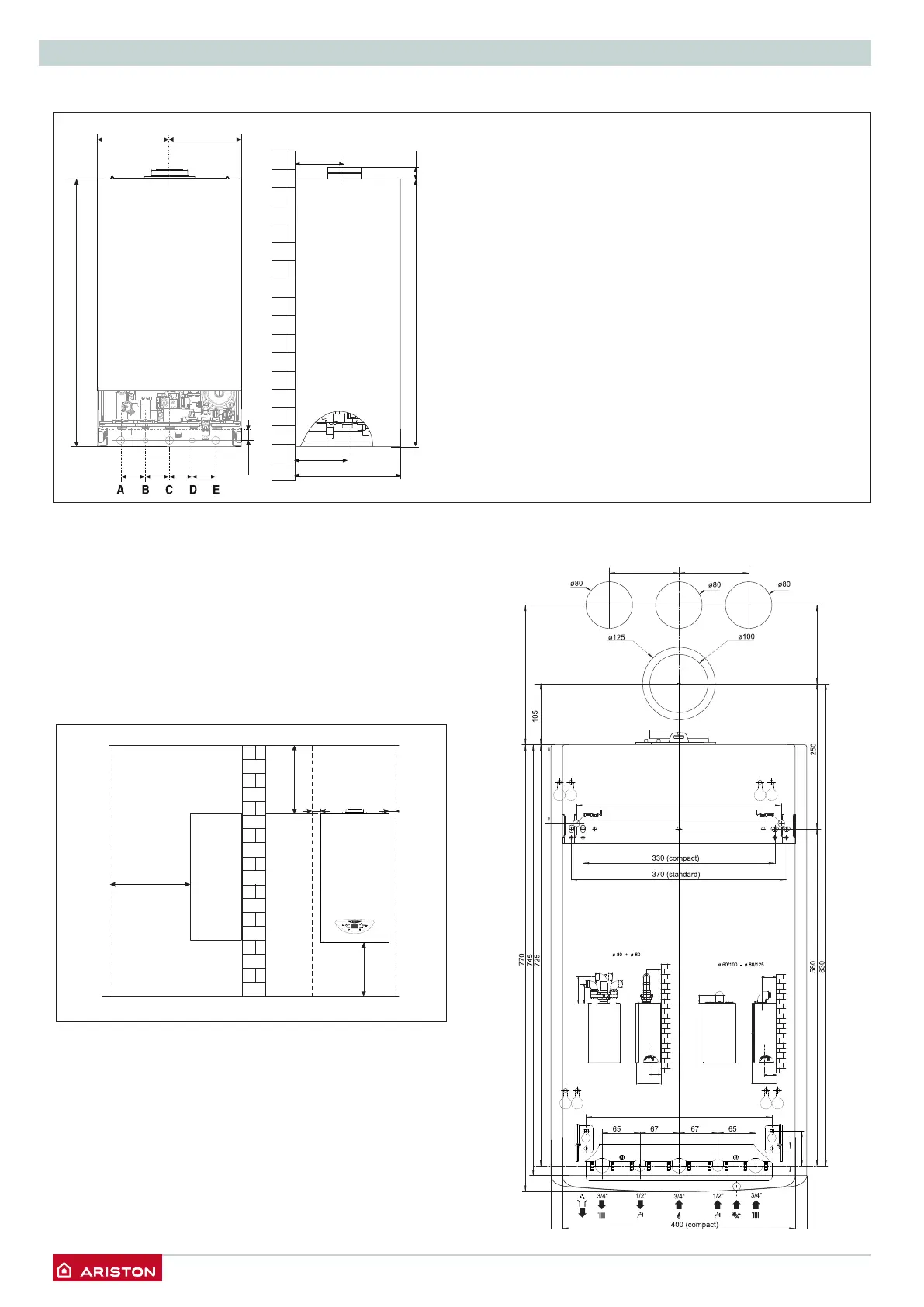
ОПИСАНИЕ КОТЛА ҚАЗАНДЫҚТЫҢ СИПАТТАМАСЫ
Белгіленулері:
А. Жылу контурына беру келте құбыры
В. ЫСҚ контурына беру келте құбыры
С. Газдың жолы
D. Суық су жолы
E. Жылу контурынан қайту
Өлшемдеріzan
Ең аз арақашықтық
Техникалық қызмет көрсету кезінде қазандыққа оңай жету
үшін қазандық тұрқынан жақын жердегі заттар мен беттерден
ең аз мүмкін арақашықтықпен (бос орынмен) қамтамасыз
ету қажет.
Қазандықты қолданыстағы нормалар мен ережелерге,
сондай-ақ өндірушінің талаптарына сәйкес орнату керек.
Орнату кезінде міндетті түрде тегістік өлшегішті қолданыңыз,
қазандық қатаң түрде жазықтықта орналасуы тиіс
Орнату шаблоны
150
315
180
25745
28
745
200 200
65 6567 67
450
053
003
50 50
353 (compact)
240
120 120
135
136
420020152000
30
60
320
334
180
150
315
150
315
180
105
243
A. Патрубок подачи в контур отопления
B. Патрубок подачи в контур ГВС
C. Подвод газа
D. Подвод холодной воды
E. Возврат из контура отопления
Размеры
Минимальные расстояния
Для легкого доступа к котлу при техническом обслуживании
следует обеспечить соответствующие минимально
допустимые расстояния (свободное пространство) от
корпуса котла до близлежащих предметов и поверхностей.
Устанавливать котел следует в соответствии с
действующими нормами и правилами, а также в
соответствии с требованиями производителя.
При установке обязательно используйте строительный
уровень, котел должен находиться в строго вертикальном
положении.
Установочный шаблон

Table of Contents

Other manuals for Ariston HS C 24 FF NG

Related product manuals