EasyManua.ls Logo

Ariston HS C 24 FF NG

Ariston HS C 24 FF NG
68 pages
To Next Page IconTo Next Page
To Next Page IconTo Next Page
To Previous Page IconTo Previous Page
To Previous Page IconTo Previous Page
Loading...
16 /
УСТАНОВКА ОРНАТУ
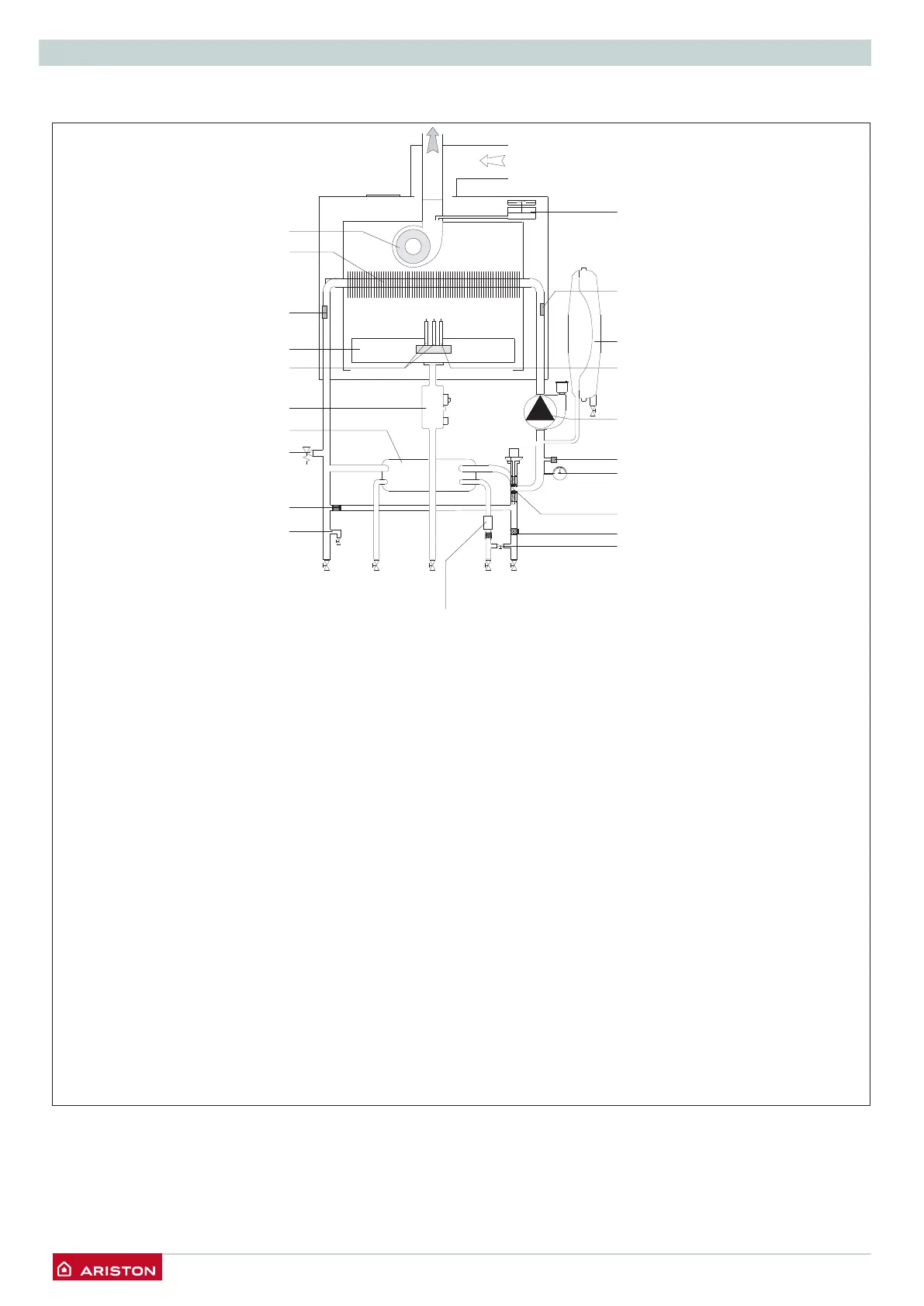
Гидравликалық схема
Обозначения
1. Желдеткіш
2. Негізгі жылу алмастырғыш
4. Жылыту контурының қайту желісіндегі
температура қадағасы
5. Жанарғы
6. Тұтану электроды
7. Газ клапаны
8. Қосалқы пластиналы жылу алмастырғыш
9. Сақтандырғыш клапан (3 бар)
10. Ағызу шүмегі
12. ЫСҚ aғын сенсоры
14. Толтыру шүмегі
15. Жылыту контурының сүзгісі
16. Үш жүрісті клапан
17. Манометр (жылыту сҧлбасындағы қысым)
18. қысым релесі
19. Автоматты байпас
20. Автоматты ауа қайтарғысы бар циркуляциялық
сорғы
21. Жалынды бақылау электроды
22. Кеңейту багы
23. Жылыту контурындағы беруші желісіндегі
температура қадағасы
24. Пневмореле
A B
C
D E
1
2
4
9
10
19
12
14
15
16
18
17
20
22
21
23
24
8
5
7
6
Гидравлическая схема
Обозначения
1. Вентилятор
2. Первичный теплообменник
4. Датчик температуры воды на подаче в контур
отопления
5. Горелка
6. Электроды розжига
7. Газовый клапан
8. Вторичный пластинчатый теплообменник
9. Предохранительный клапан 0,3 МПа (3 бар)
10. Сливной кран
12. Измерение протока ГВС
14. Кран подпитки
15. Фильтр контура отопления
16. Трехходовой клапан
17. Манометр
18. Реле мин. давления
19. Автоматический байпас
20. Циркуляционный насос с автоматическом
воздухоотводчиком
21. Электрод контроля пламени
22. Расширительный бак
23. Датчик температуры воды на обратной линии
контура отопления
24. Пневмореле

Table of Contents

Other manuals for Ariston HS C 24 FF NG

Related product manuals