EasyManua.ls Logo

Armstrong A93UH - Page 11

Armstrong A93UH
48 pages
Print Icon
To Next Page IconTo Next Page
To Next Page IconTo Next Page
To Previous Page IconTo Previous Page
To Previous Page IconTo Previous Page
Loading...
506501-01 Page 11 of 48Issue 1031
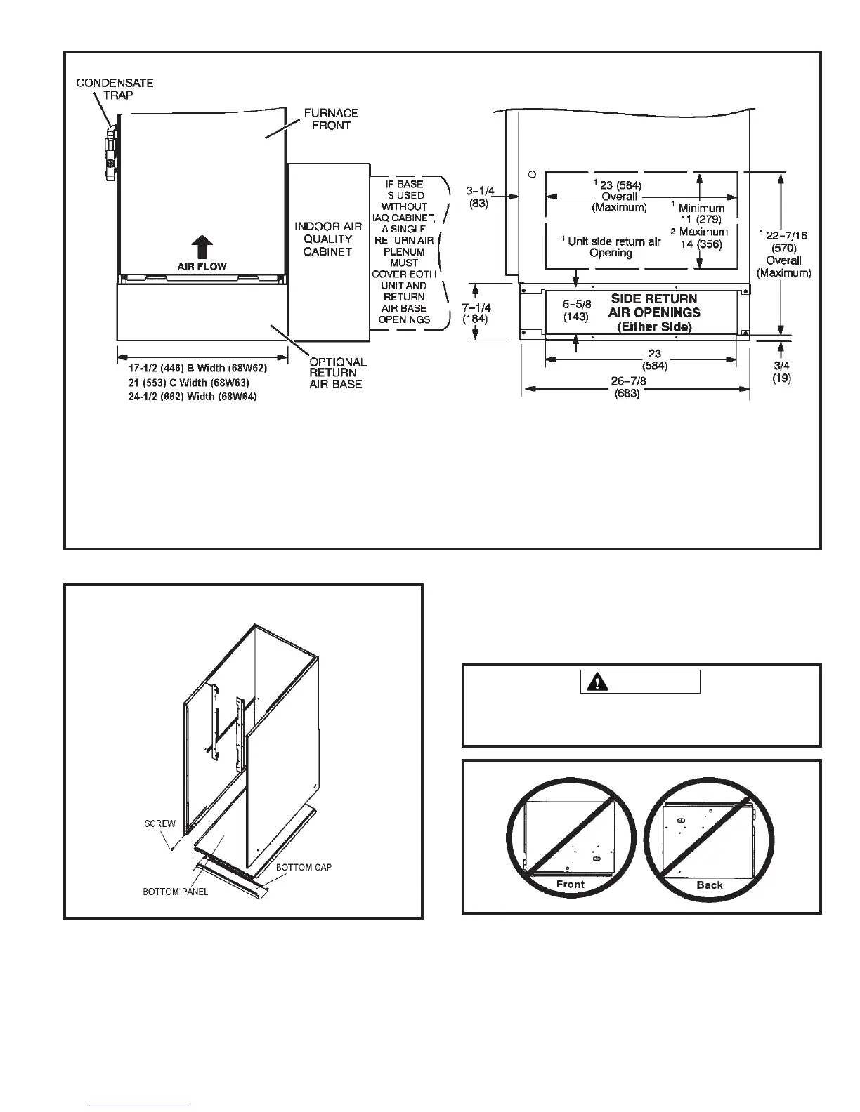
Removing the Bottom Panel
Remove the two screws that secure the bottom cap to the
furnace. Pivot the bottom cap down to release the bottom
panel. Once the bottom panel has been removed, reinstall
the bottom cap. See Figure 13.
Horizontal Applications
WARNING
Do not install the furnace on its front or its back. See
Figure 14.
This furnace can be installed in horizontal applications with
either right or left hand air discharge.
Refer to Figure 15 for clearances in horizontal applications.
Optional Return Air Base
(Upflow Applications Only)
NOTE: Optional side return air filter kits are not for use with return air base.
1 Both the unit return air opening and the base return air opening must be covered by a single plenum or IAQ cabinet.
Minimum unit side return air opening dimensions for units requiring 1800 cfm or more of air (W x H): 23 x 11 in. (584 x 279 mm).
The opening can be cut as needed to accommodate plenum or IAQ cabinet while maintaining dimensions shown.
Side return air openings must be cut in the field. There are cutting guides stenciled on the cabinet for the side return air opening.
The size of the opening must not extend beyond the markings on the furnace cabinet.
2 To minimize pressure drop, the largest opening height possible (up to 14 inches) is preferred.
FRONT VIEW
SIDE VIEW
Figure 12
Figure 13
Removing the Bottom Panel
Figure 14

Related product manuals