EasyManua.ls Logo

Armstrong A93UH - Unit Dimensions

Armstrong A93UH
48 pages
Print Icon
To Next Page IconTo Next Page
To Next Page IconTo Next Page
To Previous Page IconTo Previous Page
To Previous Page IconTo Previous Page
Loading...
506501-01Page 2 of 48 Issue 1031
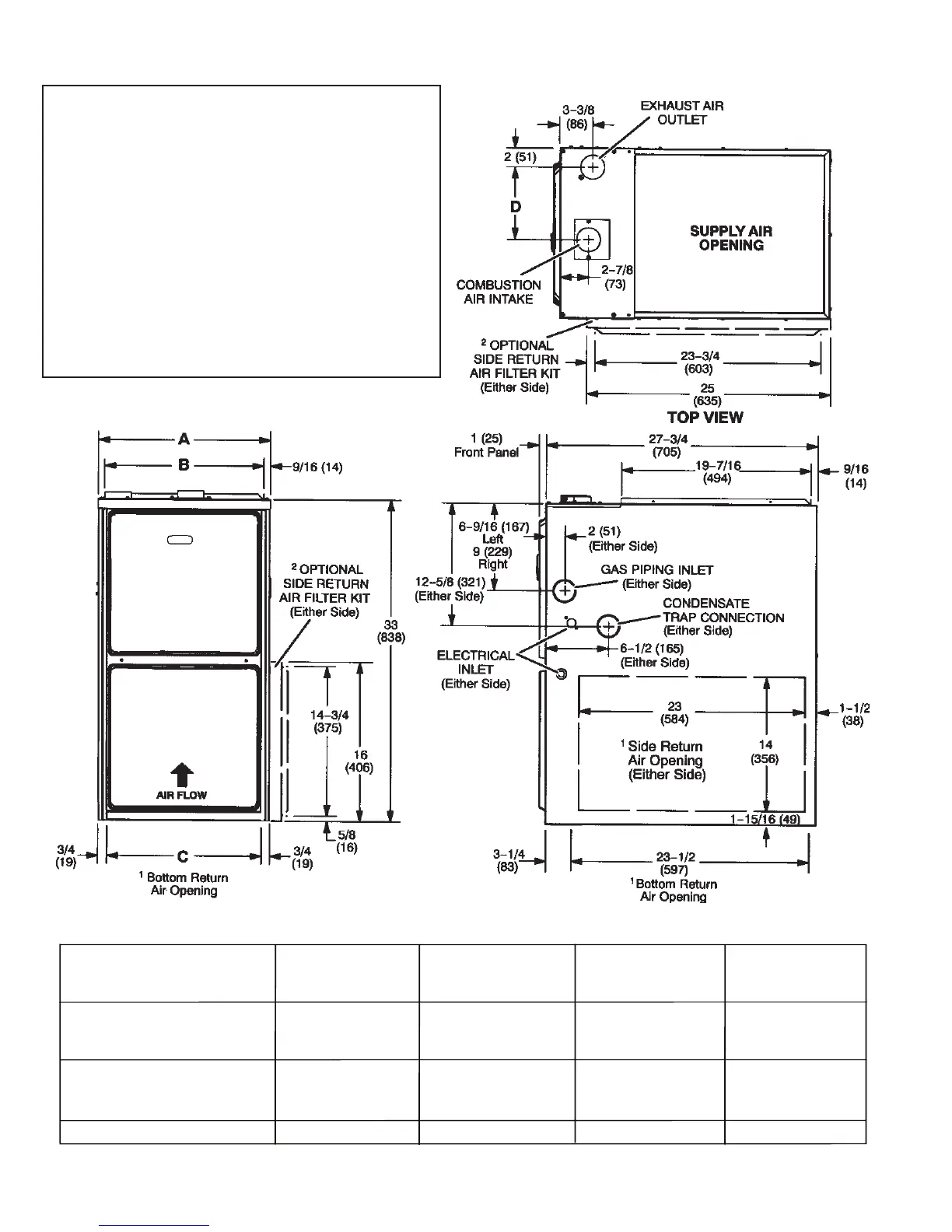
Model
A
446
17-1/2
A95UH/A93UH
B
C
in.
mm
in.
mm
in.
mm
416
16-3/8
406
16
090-12
135-20
533
21
505
19-7/8
495
19-1/2
622
24-1/2
594
23-3/8
584
23
D
in.
mm
283
11-1/8
238
9-3/8
194
7-5/8
070-08
090-16
110-16
110-20
95G1UH/92G1UH
070-12
045-12
045-08
A95UH, A93UH, 95G1UH & 92G1UH Unit Dimensions - inches (mm)
1 NOTE - 20 C/D (5 Ton) size units installed in upflow
applications that require air volumes of 1800 cfm (850 L/s) or
greater must have one of the following:
1. Single side return air with transition, to accommodate
20 x 25 x 1 in. (508 x 635 x 25 mm) air filter.
2. Single side return air with optional RAB Return Air Base
3. Bottom return air.
4. Return air from both sides.
5. Bottom and one side return air.
2 Optional External Side Return Air Filter kit is not for use with
optional Return Air Base.
* Consider sizing requirements for optional IAQ equipment
before cutting side return opening.
FRONT VIEW SIDE VIEW

Related product manuals