EasyManua.ls Logo

Armstrong A93UH - Page 27

Armstrong A93UH
48 pages
Print Icon
To Next Page IconTo Next Page
To Next Page IconTo Next Page
To Previous Page IconTo Previous Page
To Previous Page IconTo Previous Page
Loading...
506501-01 Page 27 of 48Issue 1031
Details of Exhaust Piping Terminations for Non-Direct
Vent Applications
Exhaust pipes may be routed either horizontally through an
outside wall or vertically through the roof. In attic or closet
installations, vertical termination through the roof is preferred.
Figures 37 through 40 show typical terminations.
1. Exhaust piping must terminate straight out or up as
shown. The termination pipe must be sized as listed in
Table 6. The specified pipe size ensures proper velocity
required to move the exhaust gases away from the
building.
2. On field supplied terminations for side wall exit, exhaust
piping may extend a maximum of 12 inches (305 mm)
for 2” PVC and 20” (508 mm) for 3” (76 mm) PVC beyond
the outside wall. See Figure 38.
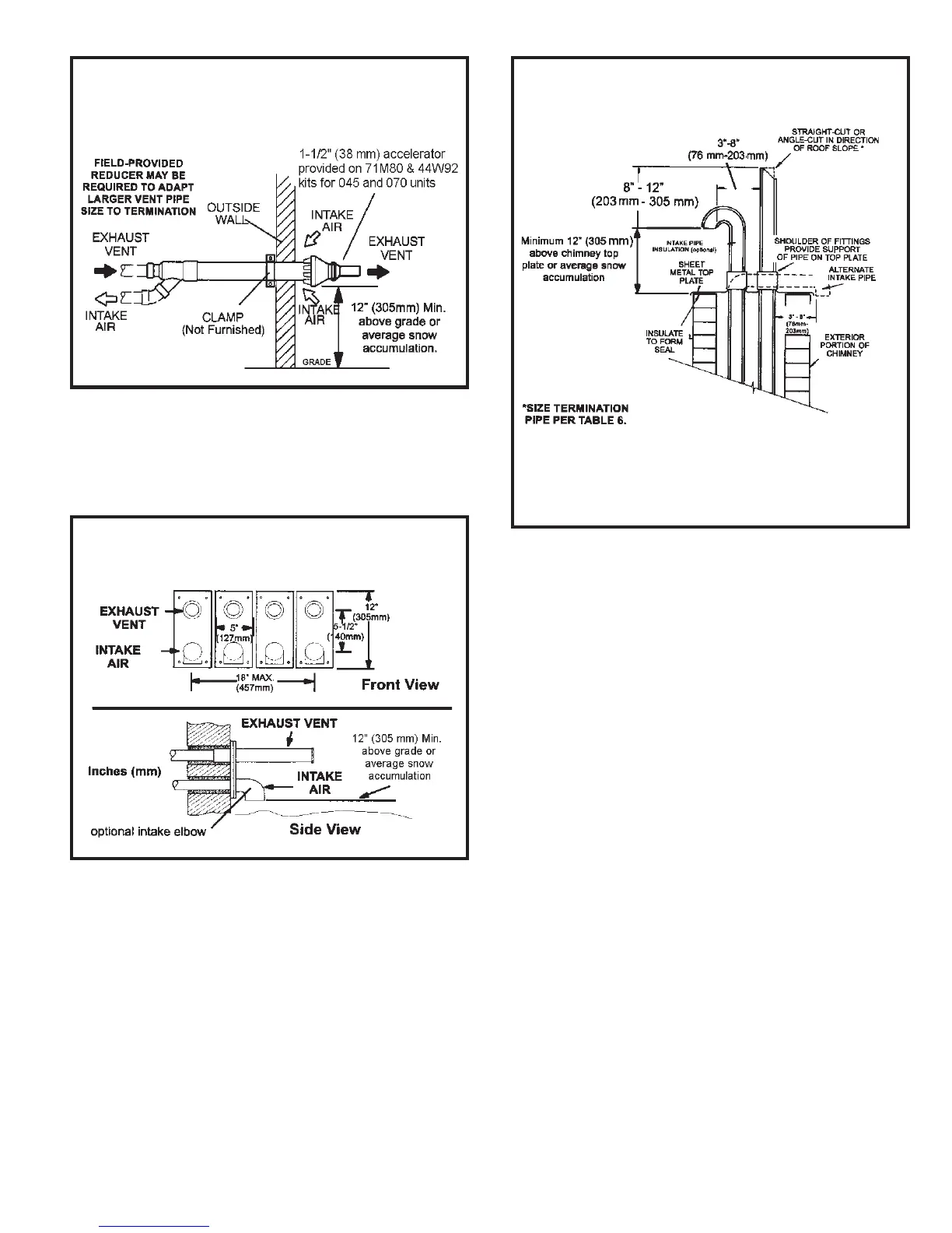
DIRECT VENT CONCENTRIC WALL TERMINATION
71M80, 69M29 OR 60L46 (US)
41W92 or 41W93 (Canada)
Figure 34
Figure 35
OPTIONAL VENT TERMINATION FOR MULTIPLE UNIT
INSTALLATION OF DIRECT VENT WALL TERMINATION
DIRECT VENT APPLICATION
USING EXISTING CHIMNEY
NOTE: Do not discharge exhaust gases directly into any chimney
or vent stack. If vertical discharge through an existing unused
chimney or stack is required, insert piping inside chimney until the
pipe open end is above top of chimney and terminates as illustrated.
In any exterior portion of chimney, the exhaust vent must be insulated.
Figure 36

Related product manuals