EasyManua.ls Logo

Arneg Lisbona - Page 9

Arneg Lisbona
Print Icon
To Next Page IconTo Next Page
To Next Page IconTo Next Page
To Previous Page IconTo Previous Page
To Previous Page IconTo Previous Page
Loading...
Lisbona
8 05060030 03 30/07/2015
12
3 2
4
12
1
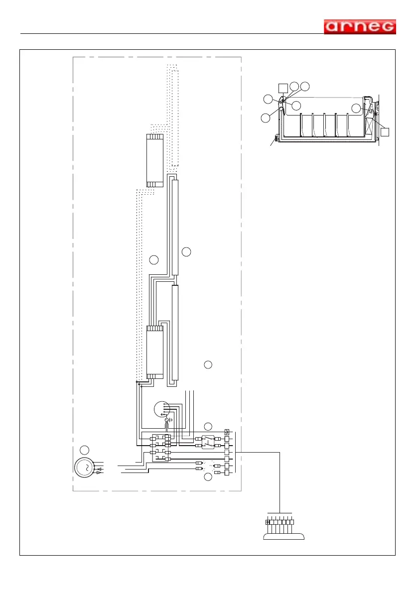
CANOPY LIGHTING
ILLUMINAZIONE PLAFONIERA
12
5
34
TENDA NOTTE(OPTIONAL)
NIGHT BLIND(OPTIONAL)
BALLASTS
REATTORI
3124
FILTRO ANTIDISTURBO
LC RFI FILTER
NLUU
6
SHELVES LIGHTING
ILLUMINAZIONE RIPIANI
M
BLU/BLUE
G.VERDE/YELLOW-GREEN
MARRONE/BROWN
NERO/BLACK
6
5
4
3
2
1
Pe
N
L
COD 04490350
BALLAST QT2x36W
REATTORE QT2x36W
4
3
2
1
Pe
N
L
COD 04490376
BALLAST QT1x36W
REATTORE QT1x36W
2
3
4
6
NIGHT BLIND SWITCH
DEVIATORE TENDE NOTTEINTERRUTTORE LUCI
LIGHT SWITCH
65
1
Q.E.
DY
2
4
3
5
6
1
2
3
4
5
6
1
2
3
5
4
6
7
8
9
CONNETTORE BIANCO
WHITE CONNECTOR
PLAFONIERA ILLUMINAZIONE
CANOPY LIGHTING
R1

Table of Contents

Related product manuals