EasyManua.ls Logo

Ashley AP5710 - Page 52

Ashley AP5710
55 pages
Print Icon
To Next Page IconTo Next Page
To Next Page IconTo Next Page
To Previous Page IconTo Previous Page
To Previous Page IconTo Previous Page
Loading...
4
OPTIONS D’INSTALLATION
Lisez l’intégralité de ce manuel avant d’installer et d’utiliser votre
poêle à granulés. Le non-respect des instructions peut entraîner des
dommages matériels, des blessures corporelles ou même la mort!
Voir les détails d’installation spéciques pour les dégagements et
autres exigences d’installation.
Unité autoportante - Soutenue par un piédestal / des pieds et
placée sur une surface de plancher incombustible conformément
aux exigences de dégagement pour une installation de poêle
autoportant.
Votre poêle à granules peut être installé pour coder dans une
maison conventionnelle ou mobile (voir «Exigences spéciales pour
les maisons mobiles»). Il est recommandé que seul un technicien
agréé installe votre poêle à granulés, de préférence un spécialiste
certié NFI. NE CONNECTEZ PAS CET APPAREIL À UN CONDUIT OU
SYSTÈME DE DISTRIBUTION D’AIR. L’utilisation d’autres composants
que ceux indiqués dans le présent document peut provoquer des
lésions corporelles, des dommages au chauffage et annuler votre
garantie.
INSTALLATION INCORRECTE
Le fabricant ne sera pas tenu responsable des dommages causés
par le mauvais fonctionnement d’un poêle en raison d’une
ventilation ou d’une installation incorrecte. Appelez le (800) 750-
2723 et / ou consultez un installateur professionnel si vous avez des
questions.
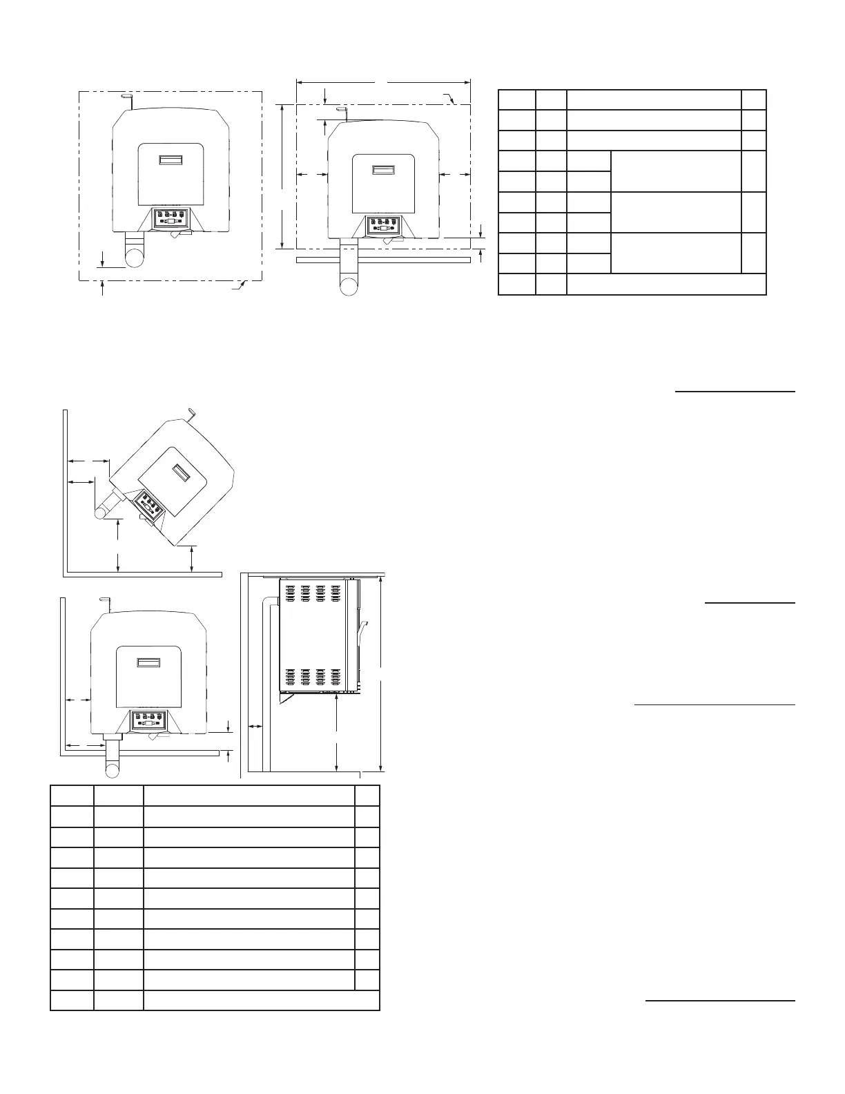
DÉGAGEMENTS
Votre poêle à granules a été testé et répertorié pour une installation
dans une maison résidentielle et mobile conformément aux
dégagements indiqués ci-dessous. Pour des raisons de sécurité,
veuillez respecter les dégagements et restrictions d’installation.
Toute réduction du jeu aux combustibles ne peut être effectuée
que par des moyens approuvés par une autorité réglementaire.
po mm
A Mur latéral au poêle 10 254
B Mur latéral au tuyau de ventilation 11,5 292
C Mur arrière au poêle 11,875 302
D Mur arrière au tuyau de ventilation 3 76
E Du plafond au sol 84 2 134
F Plafond au poêle 53,875 1 434
G Mur latéral au poêle 7,5 191
H Mur latéral au tuyau de ventilation 11,25 286
I Mur arrière au poêle 7,5 191
J Mur arrière au tuyau de ventilation 3 76
Installation
PROTECTION DU SOL
Cet appareil de chauffage doit avoir un protecteur de plancher non-combustible (UL1618 protection de braises) installé au-
dessous si le plancher est en matériau combustible. US: protection de sol doit être UL ou égale aussi, a besoin d’étendre 6 po
à l’avant, 6 po de chaque côté, 1 po à l’arrière de l’appareil. Sous et 2 po au-delà de chaque côté du de nettoyage si
un instillation vertical intérieur.
Canada: Protecteur de plancher doit se conformer à la norme CAN / ULC. Besoins d’étendre 18 po à l’avant, 8 po au-delà
de chaque côté de l’unité.
C
B
MUR ARRIÈRE
PAROI LATÉRALE
A
E
F
D
J
I
G
H
MUR ADJACENT
MUR ADJACENT
po mm
K Retour à Cuisinière
USA 1 26
CAN 8 204
L Côté poêle
USA 6 153
CAN 8 204
M De l'avant au poêle
USA 6 153
CAN 8 204
N Retour à Flue 2 51
O Longueur totale 31 788
P Largeur hors tout 38 966
K
LL
O
P
M
Protecteur De Plancher
À TRAVERS LE MUR
INSTALLATION
N
INSTALLATION VERTICALE INTÉRIEURE
Protecteur De Plancher

Related product manuals