EasyManua.ls Logo

Asko D1976CSTM - FITTING A SEMI-INTEGRATED CUSTOM DOOR PANEL ON MODEL D1976 CSTM; INSTALLING THE PANEL

Asko D1976CSTM
14 pages
Print Icon
To Next Page IconTo Next Page
To Next Page IconTo Next Page
To Previous Page IconTo Previous Page
To Previous Page IconTo Previous Page
Loading...
Page 11
Model D1976CSTM was designed to easily
accommodate custom panels. If you use the 4 toe kick,
a 2 filler strip or a pullout cutting board above the unit
will be necessary.
The opening width for Model D1976CSTM is 23-5/8
(600 mm), which is 3/8 (9 mm) narrower than standard
domestic dishwashers.
ITEMS PROVIDED WITH THE UNIT
Two short screws
Four long screws
Four adhesive-backed plastic spacer washers
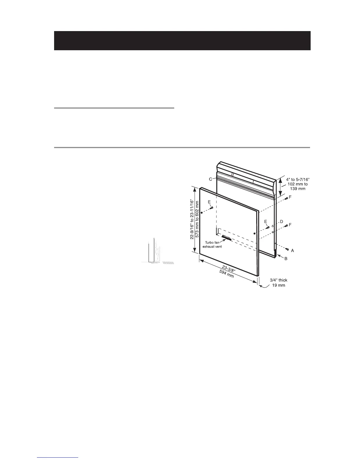
CUSTOM PANEL DIMENSIONS
Width: 23-3/8 (594 mm)
Height: 22-9/16”–23-11/16 (573 mm602 mm)
Thickness: 3/4 (19 mm) (to be flush with the control
panel)
Weight: Up to 22 lbs.
NOTE: Specifications subject to change without
notice.
NOTE: Heavy-duty door springs can be purchased for
wooden door panels weighing over twelve
pounds. (P/N 8071323-77).
INSTALLING THE PANEL
Before fitting the custom panel, the dishwasher must
be installed underneath the cabinet. After youve made
the required measurements, pull the machine out again
to install the panel.
Refer to the illustration at right for instruction references.
1. Loosen the screws (A) on the outer edges of the
dishwasher door.
2. Pull the turbo fan exhaust frame (B) down until the
lower edge aligns with the lower edge of the cabinets
and tighten the screws (A). Next, snap the plastic
duct securely into the turbo fan
exhaust vent.
WARNING!
The custom panel must not obstruct
the turbo fan exhaust. See step 2
above for instructions on how to
adjust the fan exhaust.
3. The spacers (C) between the control panel and the
custom door panel allow you to accommodate the height
of the custom panel (from 1 (25 mm) up to 1-7/16
(36.5 mm)). To remove a spacer, loosen the nuts at the
bottom of the spacers and remove as many as
necessary. Screw the nuts back on and cut off any
protruding parts of the plastic screws. (If necessary, you
can omit the spacers.)
4. To mark where to put the two short screws (E), hold
the custom panel in place against the front of the
dishwasher door and measure 16-1/8 f (410 mm)
rom the top of the dishwasher, marking that distance
on both sides of the custom panel. Next, measure
5/8 (16 mm) from the edges and mark that across
the first measurement.
5. Remove the adhesive potection off the washers and
place them in line with the keyholes (D) on the metal
front of the dishwasher door.
6. Insert the short screws (E) into the back of the wooden
panel where you marked, leaving 1/8 (3 mm) of
space between the screw heads and the panel.
7. Insert the screw heads (E) into the lower part of the
keyholes (D) and push the panel upward until the
door aligns with the cabinets.
FITTING A SEMI-INTEGRATED CUSTOM DOOR PANEL
ON MODEL D1976CSTM
8. Holding the custom panel in place, open the
dishwasher door and tighten the four screws (F)
that secure the panel.
9. Remove the backing from the protective tape and
affix it to the bottom edge of the panel, in front of the
exhaust vent.
10. Before you push the dishwasher into the cabinet
opening, test the door to make sure it opens properly.
The door is counter-balanced, so it should remain
in any position. If it doesnt, you may need to adjust
the door springs (see page 12).
11. Fasten the dishwasher to the cabinet (see page 9).

Related product manuals