EasyManua.ls Logo

Asko TD70.C - Circuit Diagram TD70.C HP

Asko TD70.C
33 pages
Print Icon
To Next Page IconTo Next Page
To Next Page IconTo Next Page
To Previous Page IconTo Previous Page
To Previous Page IconTo Previous Page
Loading...
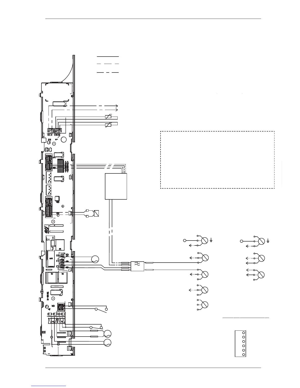
Circuit diagram TD70.C HP
Control unit
This document must not be copied without
our written pemission, and the contents
thereof must not be imparted to a third party
nor be used for any unauthorized purpose.
Contravention will be prosecuted.
Asko Appliances AB
CIRCUIT DIAGRAM TD70.C HP
80 902 90 - 00
WIRES IN SOME MACHINES
INTERNAL CONNECTION
NTC 1
F
AP
SERVICE MENU
TURN OFF POWER (S1)
WAIT FOR AT LEAST 5 SEC
HOLD S2
TURN ON POWER (S1)
PRESS S2 5 TIMES TO ENTER SERVICE MENU
PRESS STOP (S3) TO CHANGE MENU STEP
ROTATE DIAL TO CHANGE IN STEP
PRESSING START (S2) STORES AND EXITS SERVICE MENU
DB
FB
N
L1
L3
L2
CM6
CM5
CM3
INKB
CM2
MO
CM4
CM1
NTC 2
WIRES IN ALL MACHINES
CABLE POSITIONS
1: THERMISTOR
2:
COINMETER
4: MOTOR, DRAIN PUMP, FLOAT SWITCH
5: DOOR SWITCH
6: COMMUNICATIONS INTERFACE
8: POWER
9: HEATING ELEMENT
RESISTANCES AT ROOM TEMPERATURE (CA. 20°C/68°F)
VALUES WITH +/-10% ARE REGARDED AS NORMAL
COMPONENT
F: RADIO INTERFERENCE SUPPRESSION FILTER 680K Ohm
NTC 1: THERMISTOR 1 4 - 6 K Ohm
NTC 2: THERMISTOR 2: 4 - 6 K Ohm
AP: DRAIN PUMP: 111 Ohm
CO: COMPRESSOR
MO: MOTOR
FB: FLOAT SWITCH
DB: DOOR SWITCH
CI: COMMUNICATIONS INTERFACE
SV: SWITCHING VALVE
S2 S3
S1
CI
F1
F2
3 Phase, 10 A
N
L1
CM6
CM3
INKB
1 Phase, 16A
F1
F2
USER SETTINGS MENU
TURN OFF POWER (S1)
WAIT FOR AT LEAST 5 SEC
HOLD S3
TURN ON POWER (S1)
PRESS S3 5 TIMES TO ENTER MENU
2011-07-07
CO
CM5
SV
PHASE
BLACK
CM1
CM2
BROWN
CM5
CM4
CM3
GROUND
BLUE
CM6
BLACK
BLUE
YELLOW-
GREEN
FROM CONTROL UNIT
NEUTRAL
FROM CONTROL UNIT
If coin meter is selected CM1
and CM4 needs to be closed to
start the machine
(default closed with jumper)
CONNECTOR FOR COIN METER
PHASE
This document must not be copied without
our written pemission, and the contents
thereof must not be imparted to a third party
nor be used for any unauthorized purpose.
Contravention will be prosecuted.
Asko Appliances AB
CIRCUIT DIAGRAM TD70.C HP
80 902 90 - 00
WIRES IN SOME MACHINES
INTERNAL CONNECTION
NTC 1
F
AP
SERVICE MENU
TURN OFF POWER (S1)
WAIT FOR AT LEAST 5 SEC
HOLD S2
TURN ON POWER (S1)
PRESS S2 5 TIMES TO ENTER SERVICE MENU
PRESS STOP (S3) TO CHANGE MENU STEP
ROTATE DIAL TO CHANGE IN STEP
PRESSING START (S2) STORES AND EXITS SERVICE MENU
DB
FB
N
L1
L3
L2
CM6
CM5
CM3
INKB
CM2
MO
CM4
CM1
NTC 2
WIRES IN ALL MACHINES
CABLE POSITIONS
1: THERMISTOR
2:
COINMETER
4: MOTOR, DRAIN PUMP, FLOAT SWITCH
5: DOOR SWITCH
6: COMMUNICATIONS INTERFACE
8: POWER
9: HEATING ELEMENT
RESISTANCES AT ROOM TEMPERATURE (CA. 20°C/68°F)
VALUES WITH +/-10% ARE REGARDED AS NORMAL
COMPONENT
F: RADIO INTERFERENCE SUPPRESSION FILTER 680K Ohm
NTC 1: THERMISTOR 1 4 - 6 K Ohm
NTC 2: THERMISTOR 2: 4 - 6 K Ohm
AP: DRAIN PUMP: 111 Ohm
CO: COMPRESSOR
MO: MOTOR
FB: FLOAT SWITCH
DB: DOOR SWITCH
CI: COMMUNICATIONS INTERFACE
SV: SWITCHING VALVE
S2 S3
S1
CI
F1
F2
3 Phase, 10 A
N
L1
CM6
CM3
INKB
1 Phase, 16A
F1
F2
USER SETTINGS MENU
TURN OFF POWER (S1)
WAIT FOR AT LEAST 5 SEC
HOLD S3
TURN ON POWER (S1)
PRESS S3 5 TIMES TO ENTER MENU
2011-07-07
CO
CM5
SV
PHASE
BLACK
CM1
CM2
BROWN
CM5
CM4
CM3
GROUND
BLUE
CM6
BLACK
BLUE
YELLOW-
GREEN
FROM CONTROL UNIT
NEUTRAL
FROM CONTROL UNIT
If coin meter is selected CM1
and CM4 needs to be closed to
start the machine
(default closed with jumper)
CONNECTOR FOR COIN METER
PHASE
Service Manual TD70.C
22

Related product manuals