EasyManua.ls Logo

Aspes ACPD600A3IN - Installation; Wall Drilling and Bracket Fixing

Aspes ACPD600A3IN
24 pages
Print Icon
To Next Page IconTo Next Page
To Next Page IconTo Next Page
To Previous Page IconTo Previous Page
To Previous Page IconTo Previous Page
Loading...
INSTALLATION
WALL DRILLING AND BRACKET FIXING
EN-5
60
21
A
(1)
11
60
12
80
80
B
(2)
10
C
(OPTIONAL)
20
250
250
C
(3)
11
130
130
10
Oponal
11
10
1320 - 1700
926
530
730
910
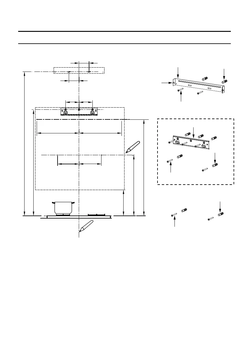
As a first step, proceed with the following drawings:
A vertical line up to the ceiling or up to the upper limit, at the center of the area in which the
hood is to be fitted.
A horizontal line A at 1320 1700 mm above the cooker top.
A horizontal line B at a minimum 926 mm above the cooker top.
A horizontal line C at a minimum 730 (910 optional) mm above the cooker top.
Mark Points:
Mark a point (1) on the horizontal line A, 60 mm to the right of the vertical reference line.
Repeat this operation on the other side, checking that the two marks are leveled.
Mark a point (2) on the horizontal line B, 80 mm to the right of the vertical reference line.
Repeat this operation on the other side and on the vertical reference line, checking that the
three marks are leveled.

Related product manuals