EasyManua.ls Logo

Atlas Copco GA 11 VSD MED - Cooling System

Atlas Copco GA 11 VSD MED
104 pages
To Next Page IconTo Next Page
To Next Page IconTo Next Page
To Previous Page IconTo Previous Page
To Previous Page IconTo Previous Page
Loading...
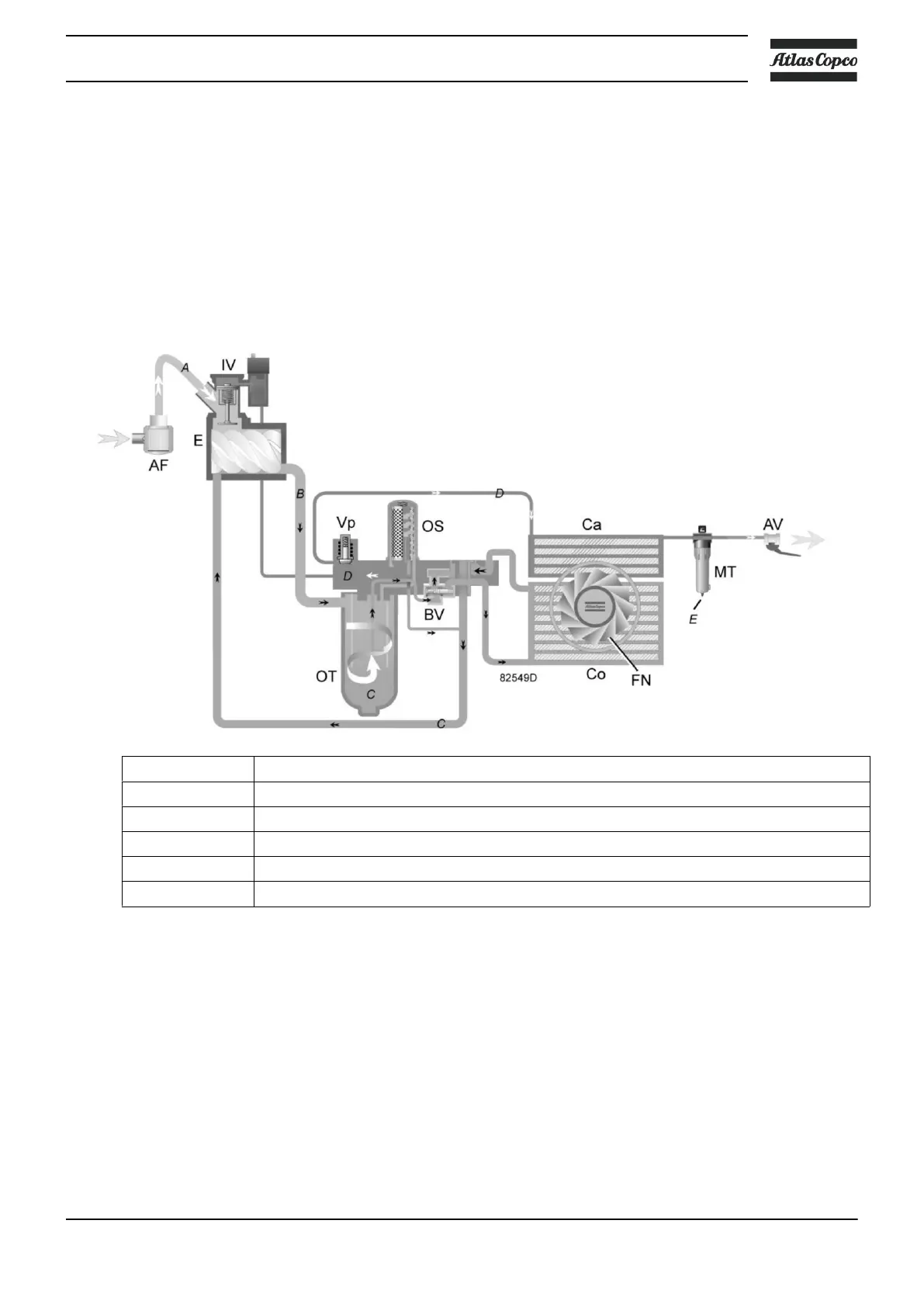
serves as oil tank. The remaining oil is removed by oil separator (OS). A small pipe returns the separated oil
towards the compressor element.
Air pressure forces the oil from oil separator/tank through oil cooler (Co) and oil filter (OF) towards
compressor element (E).
The system comprises a thermostatic bypass valve (BV). Only when the oil is warm, the valve allows the oil
to pass through the oil cooler.
2.4 Cooling system
Reference Description
A Intake air
B Air/oil mixture
C Oil
D Wet compressed air
E Condensate
Description
The cooling system comprises air cooler (Ca) and oil cooler (Co). The cooling air flow is generated by fan
(FN).
Instruction book
2920 7104 10 13

Table of Contents

Related product manuals