EasyManua.ls Logo

Atlas Copco GA200

Atlas Copco GA200
41 pages
To Next Page IconTo Next Page
To Next Page IconTo Next Page
To Previous Page IconTo Previous Page
To Previous Page IconTo Previous Page
Loading...
2920 1251 02
15
Instruction book
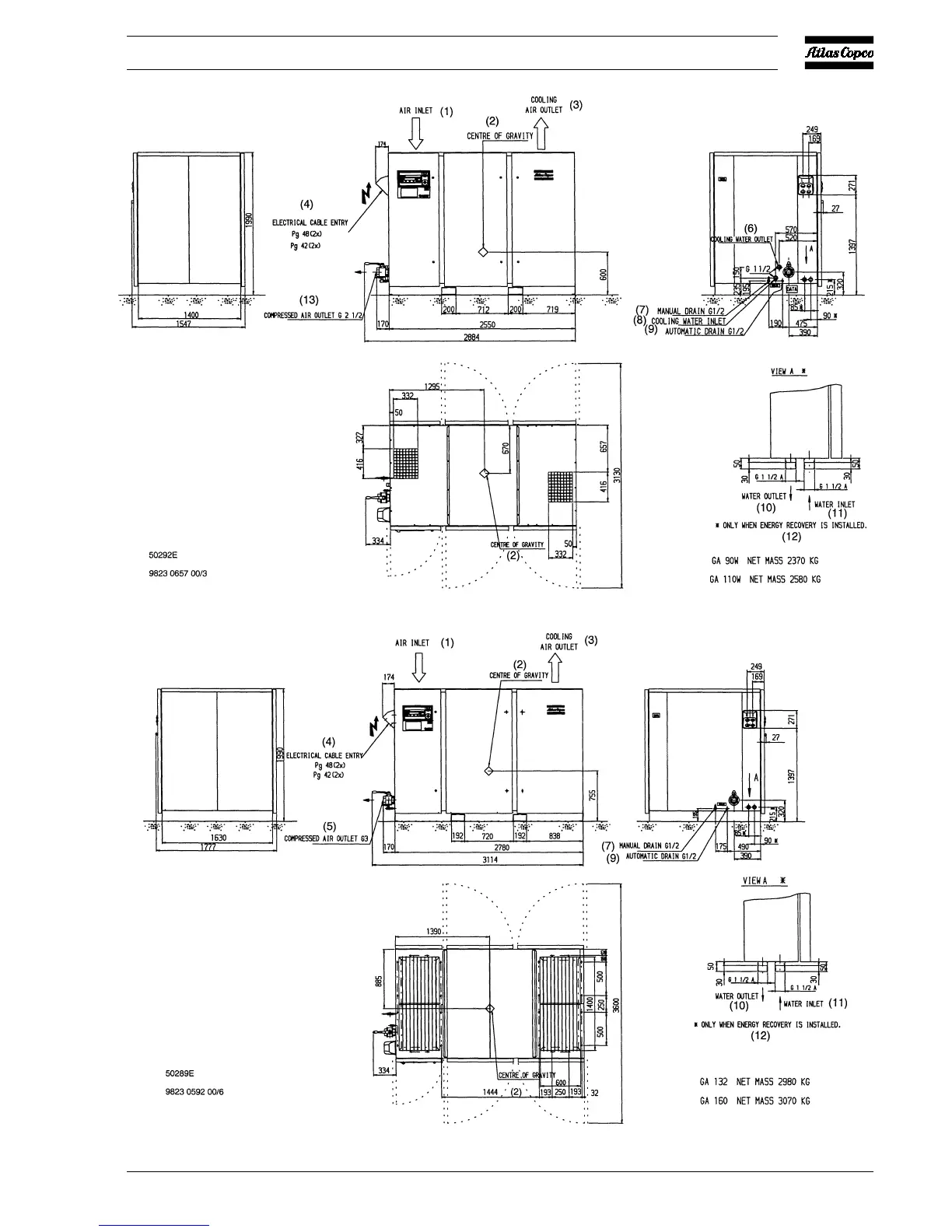
Fig. 6b. Dimension drawing GA W 90 and -110
Fig. 6c. Dimension drawing GA132 and -160

Related product manuals