EasyManua.ls Logo

Atlas Copco LE 3 - Page 30

Atlas Copco LE 3
80 pages
To Next Page IconTo Next Page
To Next Page IconTo Next Page
To Previous Page IconTo Previous Page
To Previous Page IconTo Previous Page
Loading...
28 2920 7089 80
Instruction book
9820 2239 21/07
81455D
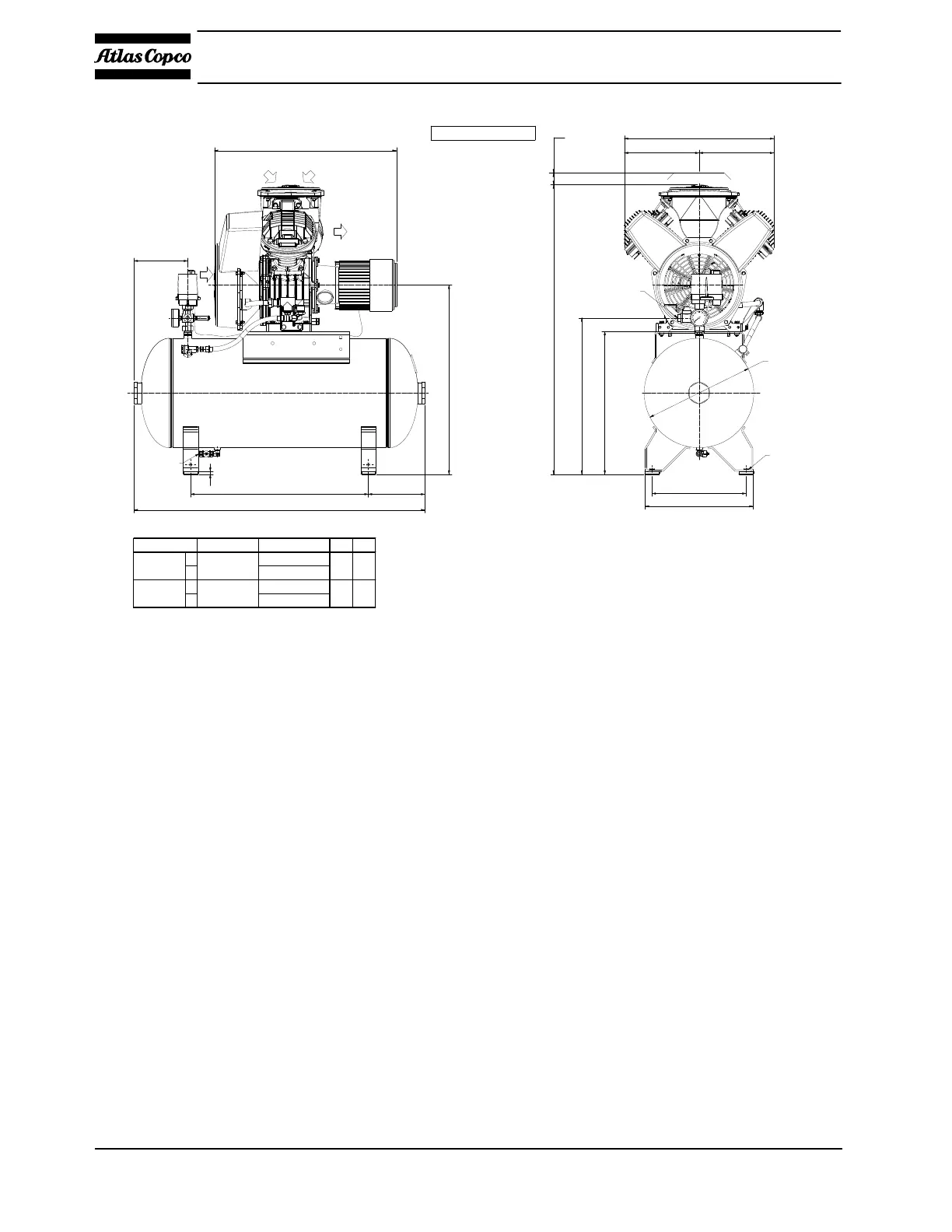
Receiver (L) Netmass (Kg) A B
285
389
293
397
504
533 279
252LE/LF
Type
LT
90
90
TM 90L LE/LT/LF 2-3
Cooling air inlet
Cooling air outlet
Compressor air inlet
181
982
6
4
0
191
600
9
7
9
370
4
0
For dismantling
air filter
A
252
B
1
0
615
5
2
9
4
8
3
364
318
Compressed air outlet
G 1/2"
Manual drain
G 1/4"
Slot Hole 15x25 (4x)
LE 2 up to LE 3, Tank-mounted, receiver 90 l

Related product manuals