EasyManua.ls Logo

Atlas Copco LE9N

Atlas Copco LE9N
28 pages
To Next Page IconTo Next Page
To Next Page IconTo Next Page
To Previous Page IconTo Previous Page
To Previous Page IconTo Previous Page
Loading...
Industrial Air Division
2920 5997 03
18
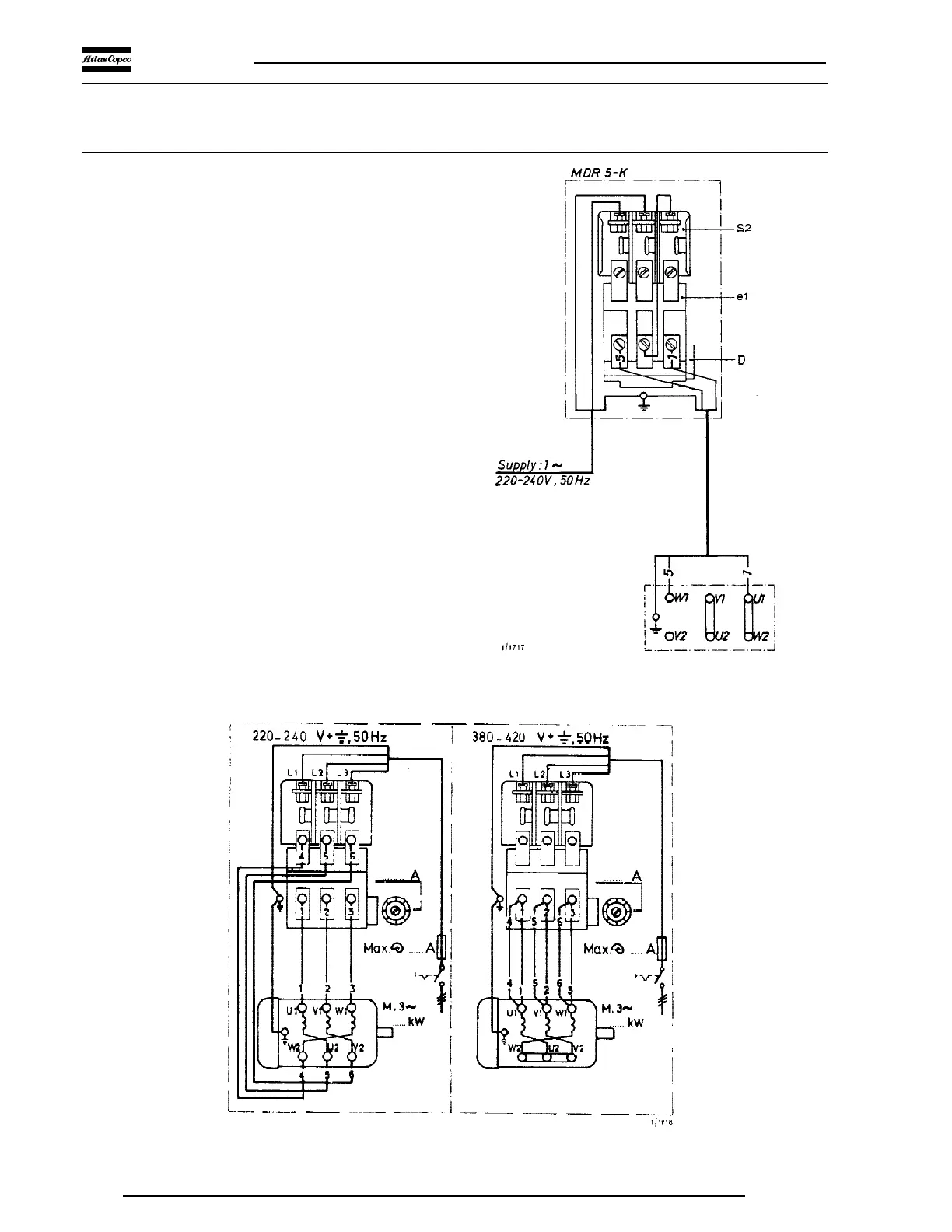
Fig. 11. Electrical diagrams of LE/LT5, -6 with three-phase motor
D. Setting dial
e1. Motor overload relay
S2. Air pressure switch
Fig. 10. Electrical diagram of LE/LT5, -6 with monophase motor
9 Electrical diagrams

Related product manuals