EasyManua.ls Logo

Atlas Copco LE9N

Atlas Copco LE9N
28 pages
To Next Page IconTo Next Page
To Next Page IconTo Next Page
To Previous Page IconTo Previous Page
To Previous Page IconTo Previous Page
Loading...
Industrial Air Division
192920 5997 03
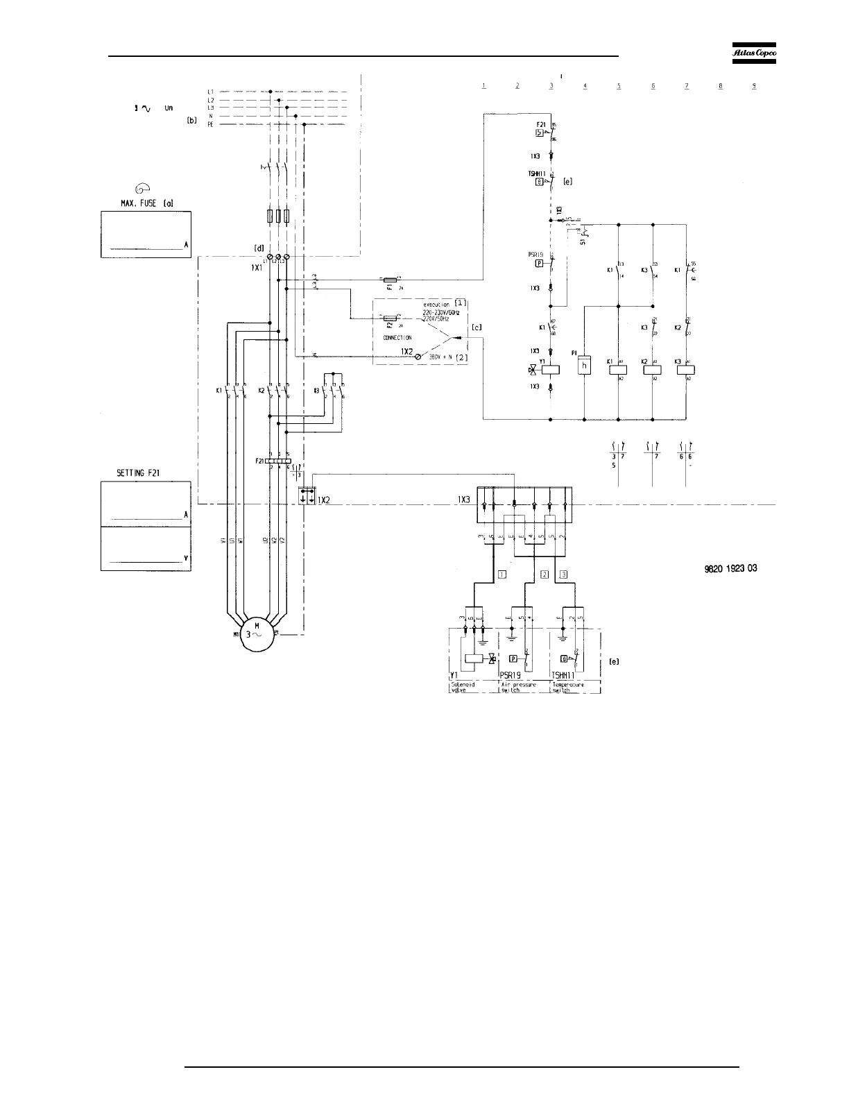
F1/3. Fuses
F21. Overload relay
K1. Line contactor
K2. Delta contactor
K3. Star contactor
M1. Compressor motor
PSR19. Air pressure switch
P1. Hourmeter
S1. Selector switch: 1/2 AUTO - O - AUTO
TSHH11. Temperature switch (not provided)
T1. Transformer
1X1/2. Terminal strips
1X3. Plug
Y1. Solenoid valve
Figs. 12 and 13. Electrical diagrams of LE/LT7 up to -12 and LEN
Fig. 12. Electrical diagram of LE/LT7 up to -12 and LEN without transformer

Related product manuals