EasyManua.ls Logo

Atlas Copco LT15/30

Atlas Copco LT15/30
74 pages
To Next Page IconTo Next Page
To Next Page IconTo Next Page
To Previous Page IconTo Previous Page
To Previous Page IconTo Previous Page
Loading...
Instruction book
(3)
(5)
(6)
(7)
(8) (4)
9820 2239 27/5
55765D
10 10 15-20
10
10
15
20
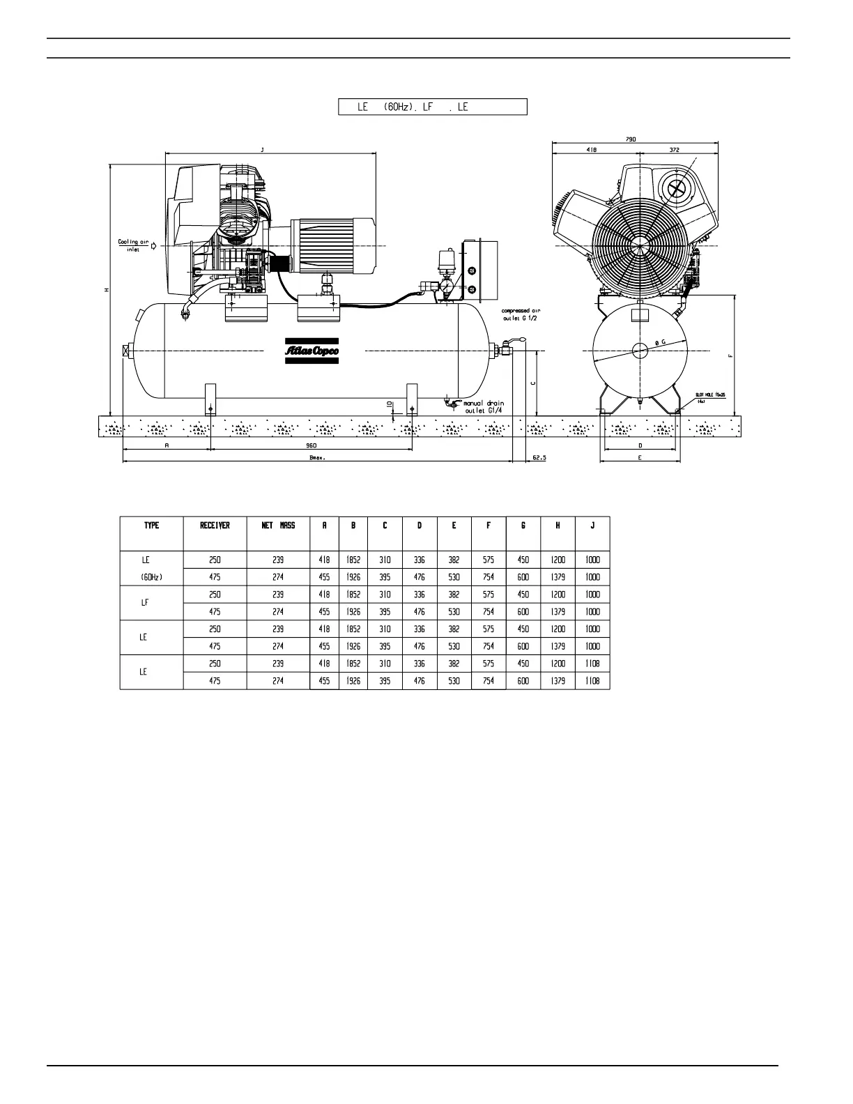
See page 35 for the text on this figure
Fig. 2.14 Dimension drawing, Tank-mounted LE10 up to -20 and LF10 (horizontal 250/475 l receiver)
2920 1585 00 - 28 -

Table of Contents

Related product manuals