EasyManua.ls Logo

Atlas Copco ZR30 - Page 26

Atlas Copco ZR30
66 pages
To Next Page IconTo Next Page
To Next Page IconTo Next Page
To Previous Page IconTo Previous Page
To Previous Page IconTo Previous Page
Loading...
Instruction book
2920 1472 03 26
(1)
(25)
(19)
(4)
(
3
)
(21)
(5)
(6)
(7)
(8)
(10)
(9)
(11)
(12)
(19)
(14)
(16)
(15)
(17)
(13)
(28)
(27)
9820 3711 00/02
55358D
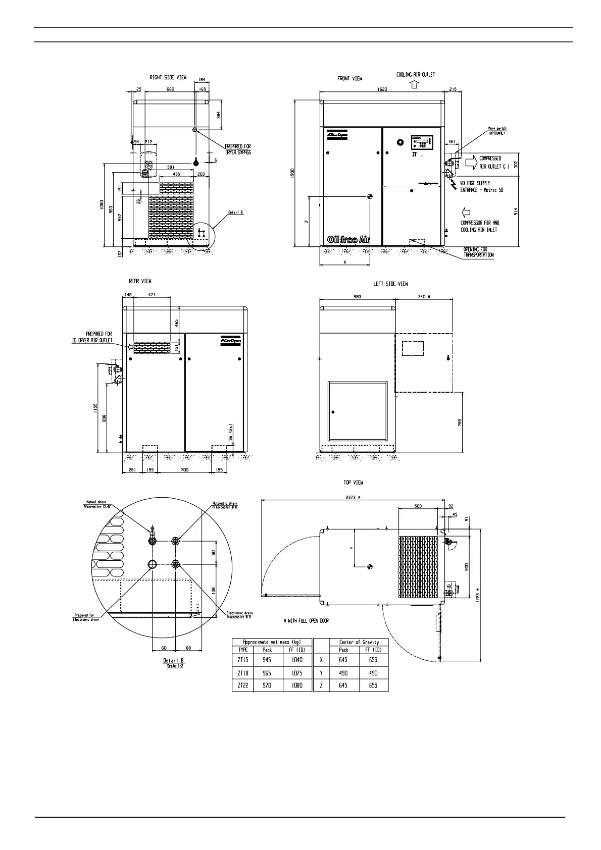
See page 30 for the list of texts on this figure.
Fig. 2.2 Dimension drawing, ZT15 up to -22 WorkPlace Air System

Table of Contents

Related product manuals