EasyManua.ls Logo

Atlas Copco ZT22 - Page 12

Atlas Copco ZT22
66 pages
To Next Page IconTo Next Page
To Next Page IconTo Next Page
To Previous Page IconTo Previous Page
To Previous Page IconTo Previous Page
Loading...
Instruction book
2920 1472 03 12
AF
TV
Y1
US
UV
AS
CV
CM
1
2
UA
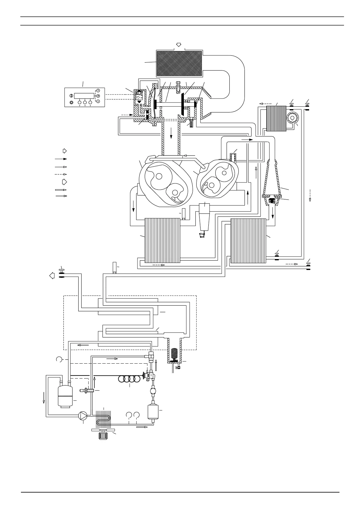
AIR INLET (1)
AIR FLOW (2)
OIL FLOW (3)
WATER FLOW (4)
4
3
OP
Eh
El
OF
AIR OUTLET (5)
F1 F2 F3
Elektronikon
11
15
16
17
18
19
14
SVl
SVh
AV
REFRIGIRANT FLUID
REFRIGERANT GAS
6
7
5
8
12
10
FN1
M3
13
55346D
EWDi
(6)
(7)
9
MTi
Fig. 1.6b ZR compressors with an ID dryer

Table of Contents

Related product manuals