EasyManua.ls Logo

Atlas Copco ZT45 - Page 32

Atlas Copco ZT45
66 pages
To Next Page IconTo Next Page
To Next Page IconTo Next Page
To Previous Page IconTo Previous Page
To Previous Page IconTo Previous Page
Loading...
Instruction book
2920 1472 03 32
(2)
(3)
(4)
(1)
9820 3718 00/2
52654D
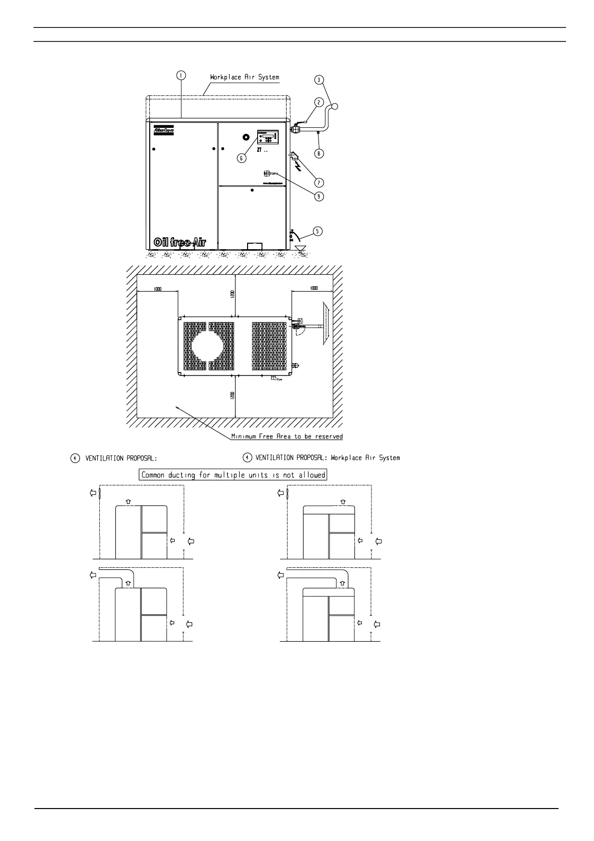
Text on figure 2.6
(1) Common ducting for multiple units is not allowed
(2) Minimum free area
(3) Ventilation proposal
(4) Ventilation proposal for WorkPlace Air System
Fig. 2.6 Installation proposal, ZT

Table of Contents

Related product manuals