EasyManua.ls Logo

Atmos DC40SX - Wiring Diagram for Accumulation Tanks

Atmos DC40SX
40 pages
Print Icon
To Next Page IconTo Next Page
To Next Page IconTo Next Page
To Previous Page IconTo Previous Page
To Previous Page IconTo Previous Page
Loading...
Instruction manual - GB
www.atmos.cz
22-GB
GB
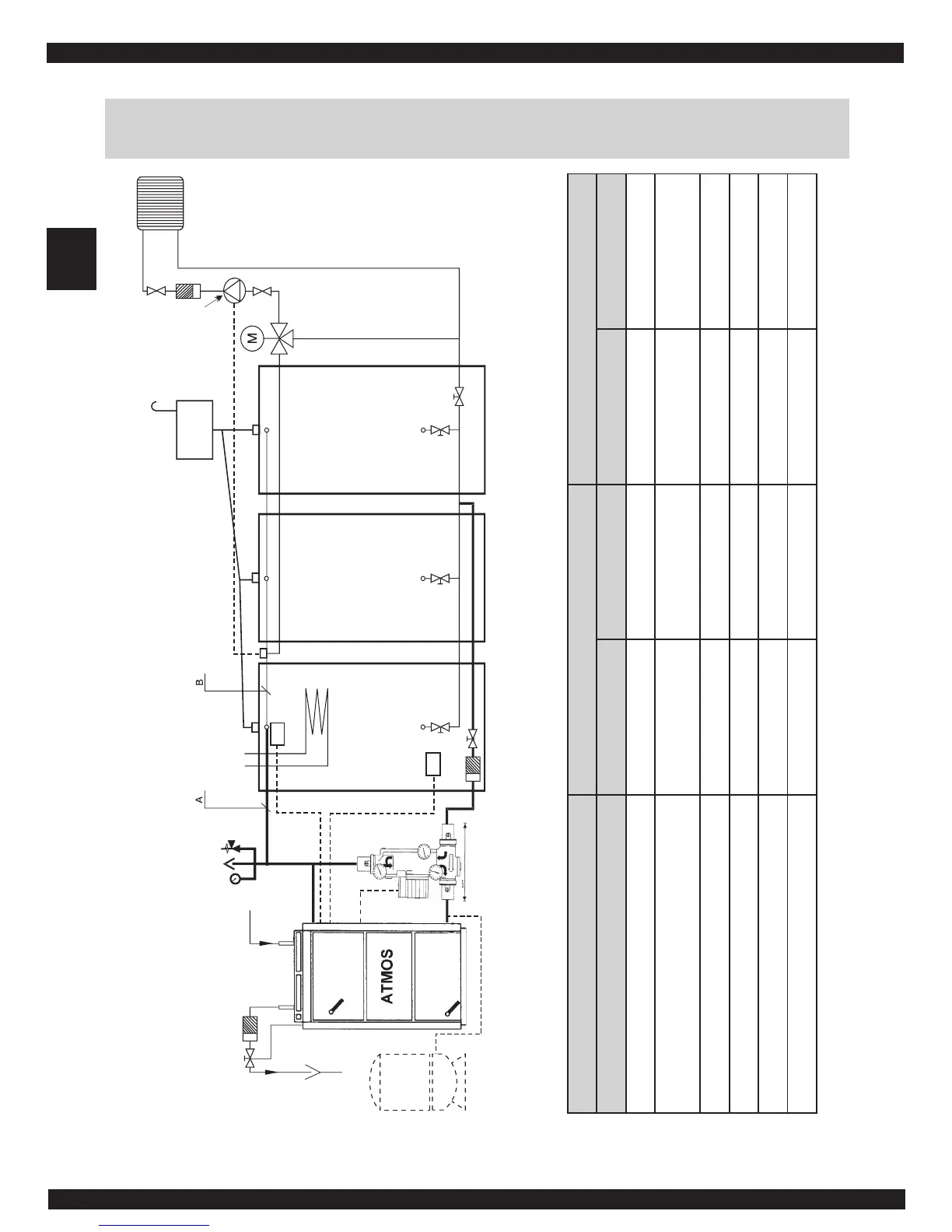
23. Recommended wiring diagram with Laddomat 21 and ac-
cumulators







































Boiler type and output
section A
section B
in copper in steel in copper in steel
D15E, DC18S, DC20GS
28x1 25 (1”) 28x1 25 (1”)
DC22S, DC25S, DC25GS, DC22SX,
DC30SX
28x1 25 (1”) 28x1 25 (1”)
DC32S, DC32GS, DC30SE
35x1,5 32 (5/4”) 28x1 25 (1”)
DC40GS, DC40SE, DC40SX
35x1,5 32 (5/4”) 28x1 25 (1”)
DC50S, DC50SE
42x1,5 40 (6/4”) 35x1,5 32 (5/4”)
DC70S, DC75SE
54x2 50 (2”) 42x1,5 40 (6/4”)
Pipeline diameters if connected with accumulation tanks

Table of Contents

Related product manuals