EasyManua.ls Logo

AVG BOSTON - Page 28

AVG BOSTON
Print Icon
To Next Page IconTo Next Page
To Next Page IconTo Next Page
To Previous Page IconTo Previous Page
To Previous Page IconTo Previous Page
Loading...

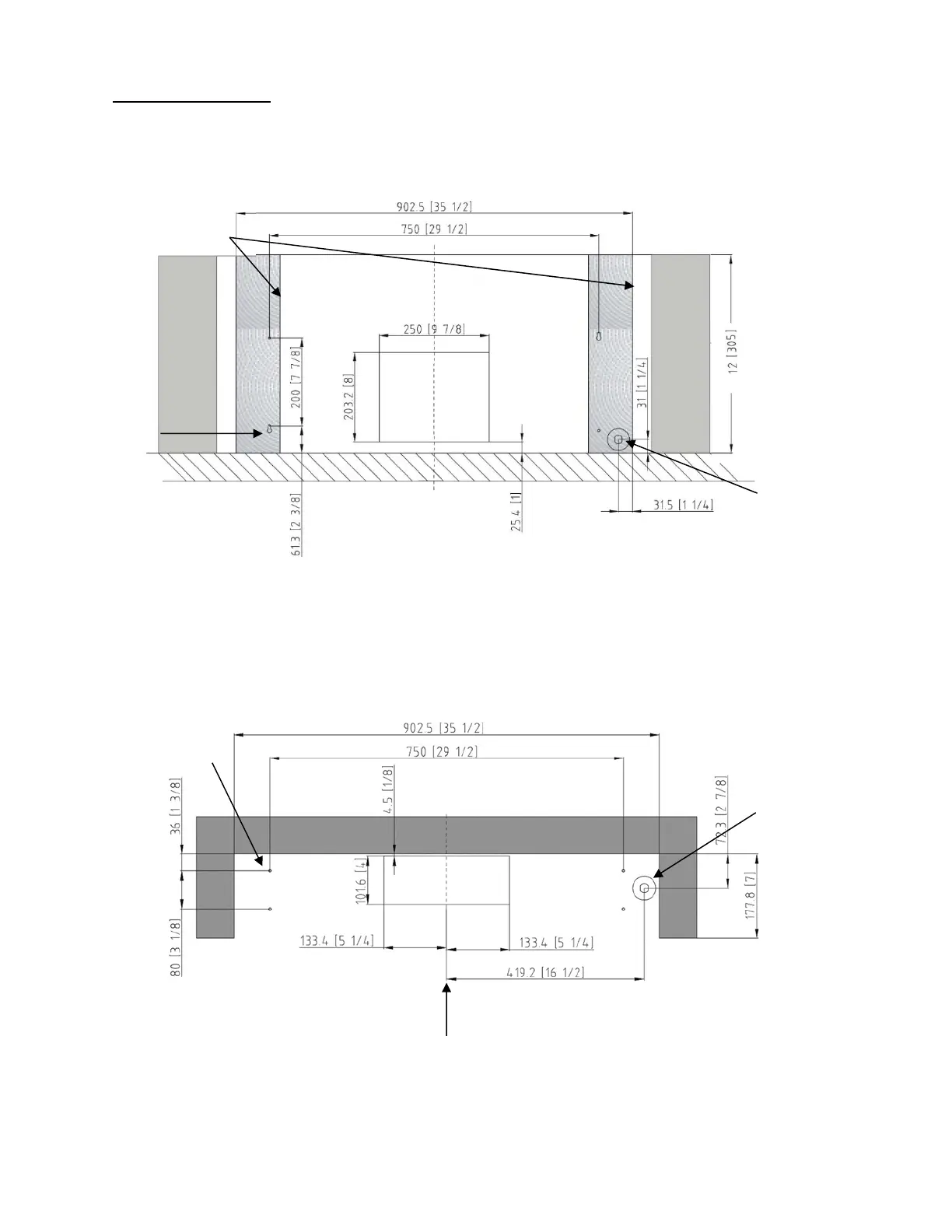
ModelAVB366RS
CABINETCUTOUT(seenfromthetop)
28
CABINETCUTOUT(seenfromtherear)
Mountin
screw
s
Woodfillersupport
strips(notincluded)
ElectricalAccess
Opening
Top
duct/exhaust
access
centerline
centerline
ElectricalAccess‐
Opening
Mountingscrews
Rearductaccess

Related product manuals