EasyManua.ls Logo

Backyard Play Systems 5027 - Safety Area

Default Icon
84 pages
Print Icon
To Next Page IconTo Next Page
To Next Page IconTo Next Page
To Previous Page IconTo Previous Page
To Previous Page IconTo Previous Page
Loading...
15
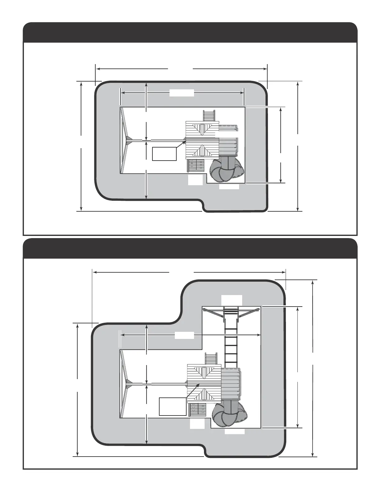
PLAYSET SET-UP
PLAYSET SET-UP WITH MONKEY BARS
SAFETY AREA
SAFETY AREA
FRONT SIDE
BACK SIDE
6'
6'
6' SAFETY AREA
6' SAFETY AREA
LEFT SIDE
RIGHT SIDE
SWING
SLIDE
ROCK
WALL
MONKEY
BARS
13'-0"
27'-6"
15'-6"
29'-2"
25'-0"
13'-0"
13'-0"
17'-2"
HEIGHT
10'-2"
FRONT SIDE
BACK SIDE
FRONT SIDE
6'
6' SAFETY AREA
6' SAFETY AREA
6'
6'
6'
6'
LEFT SIDE
RIGHT SIDE
SWING
SLIDE
TERRACE
LADDER
ROCK
WALL
21'-7"
17'-0"
9'-7"
29'-0"
25'-0"
13'-0"
HEIGHT
10'-2"