EasyManua.ls Logo

Bakers Pride BCO-G1 - Page 11

Bakers Pride BCO-G1
16 pages
Print Icon
To Next Page IconTo Next Page
To Next Page IconTo Next Page
To Previous Page IconTo Previous Page
To Previous Page IconTo Previous Page
Loading...
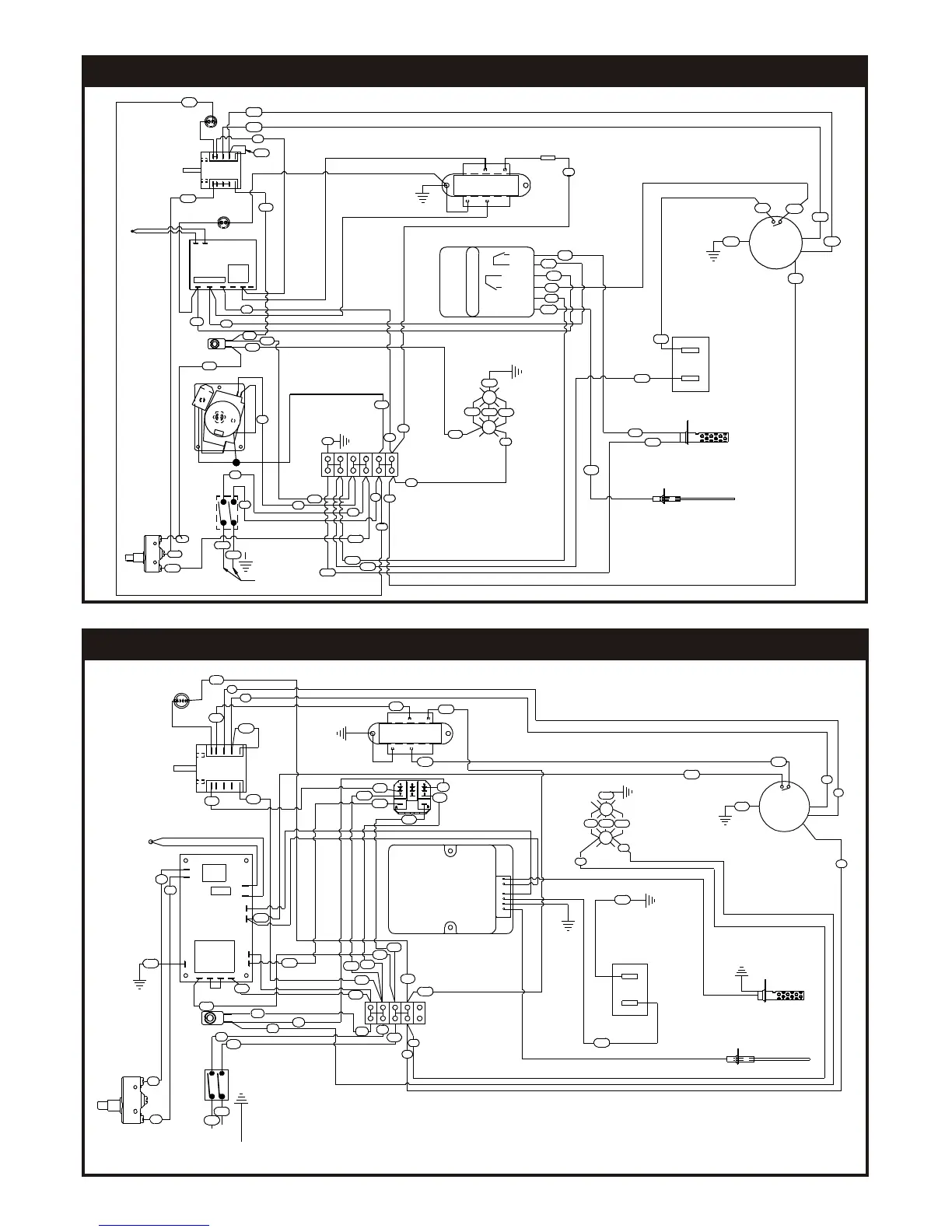
WIRING DIAGRAM - BCO-G & GDCO-G 240V, 1 PHASE (DIAL CONTROL)
WIRING DIAGRAM - GDCO-G 240V, 1 PHASE (PUSH-BUTTON CONTROL)
11
BLACK
P1P2P3P4
COM
NC
NO
T6
T7 T8
T9 T10T11
BLUE
YELLOW
GROUND STUD
POWER
LIGHT
T-STAT
LIGHT
SWITCH
LIGHTS
60 MIN
TIMER
POWER
SWITCH
DOOR SWITCH
FLAME SENSOR
IGNITER
HIGH
LOW
CENTRIFUGAL
SWITCH
FAN
MOTOR
COM
240V
ORANGE
GROUND
24V
4 POS
SWITCH
T-STAT LIGHT
GROUND
STUD
GROUND
STUD
PROBE
TRANSFORMER
13
12
2
32
33
15
15
2
31
33
23
22
12
7
14
1
11
3
9
4
14
5
39
36
38
16
17
32
10
4
13
28
8
29
21
18
19
37
23
COMBINATION
VALVE
31
MOT
21
16
19
20
17
18
35
29
11
20
26
34
10
1
7
3
9
BUTT
SPLICE
L1-24VAC
GROUND
FLAME
SENSE
VALVE
HOT
THERMOSTAT
IGNITOR
22
40
41
GROUND STUD
32
1
4
26
IGNITION
CONTROL
7
6
4
3
2
1
Plug or Connection
Supplied at installation
8806658
8806660
IGNITOR
THERMOSTAT
VALVE HOT
GROUND
FLAME SENSOR
L1-24VAC
GROUND STUD
P1 P2P3
P4
T2 T3
T4
T5
T1
T8
T9
T7
T6
T12
T13
T11
T10 DOOR
SWITCH
PROBE
21
20
23
22
LIGHTS
240V
LOW
HIGH
240V
24V
PROBE
IGNITER
FLAME SENSOR
TRANSFORMER
RELAY
4
POSTION
SWITCH
DOOR SWITCH
POWER SWITCH
PUSH BUTTON
SWITCH
CH100
CONTROL
COMBINATION VALVE
GREEN
LIGHT
CENTRIFUGAL SWITCH
FAN
MOTOR
MOT
1
2
3
COM
2
1
3
29
30
30
4
6
11
18
18
15
15
26
17
17
5
4
5
6
7
8
7
8
27
28
9
10
10
9
11
12
12
13
13
14
14
16
16
19
19
32
32
25
25
24
YELLOW
BLUE
BLACK
ORANGE
29
33
33
31
34
35

Other manuals for Bakers Pride BCO-G1

Related product manuals