EasyManua.ls Logo

Bakers Pride BCO-G1 - Wiring Diagram

Bakers Pride BCO-G1
16 pages
Print Icon
To Next Page IconTo Next Page
To Next Page IconTo Next Page
To Previous Page IconTo Previous Page
To Previous Page IconTo Previous Page
Loading...
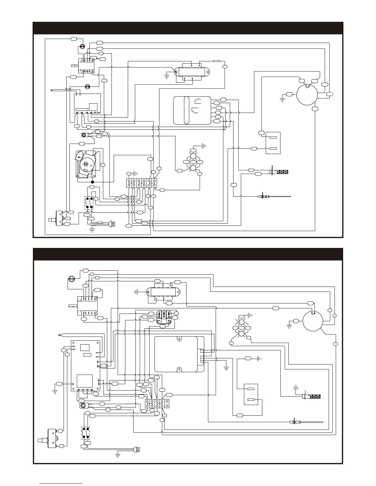
WIRING DIAGRAM - BCO-G & GDCO-G 120V, 1 PHASE (DIAL CONTROL)
WIRING DIAGRAM - GDCO-G 120V, 1 PHASE (PUSH-BUTTON CONTROL)
10
BLACK
P1
P2P3P4
COM
NC
NO
T6
T7
T8 T9 T10T11
BLUE
YELLOW
GROUND STUD
POWER
LIGHT
T-STAT
LIGHT
SWITCH
LIGHTS
60 MIN
TIMER
POWER
SWITCH
DOOR SWITCH
FLAME SENSOR
IGNITER
HIGH
LOW
CENTRIFUGAL
SWITCH
FAN
MOTOR
COM
120V
WHITE
GROUND
24V
4 POS
SWITCH
T-STAT LIGHT
GROUND
STUD
GROUND
STUD
PROBE
TRANSFORMER
13
12
2
32
33
15
15
2
31
33
23
22
12
7
14
1
11
3
9
4
14
5
39
36
38
16
17
32
10
4
13
28
8
29
21
18
19
37
23
COMBINATION
VALVE
31
MOT
21
16
19
20
17
18
35
29
11
20
26
34
10
1
7
3
9
BUTT
SPLICE
L1-24VAC
GROUND
FLAME
SENSE
VALVE
HOT
THERMOSTAT
IGNITOR
22
40
41
BUTT SPLICE
GROUND STUD
321 4
26
IGNITION
CONTROL
7
6
4
3
2
1
GROUND STUD
P1 P2P3
P4
T2
T3 T4 T5
T1
T8
T9
T7
T6
T12
T13
T11
T10 DOOR
SWITCH
PROBE
21 2023
22
LIGHTS
120V
LOW
HIGH
120V
24V
PROBE
IGNITER
FLAME SENSOR
TRANSFORMER
RELAY
4
POSTION
SWITCH
DOOR SWITCH
POWER SWITCH
PUSH BUTTON
SWITCH
CH100
CONTROL
COMBINATION VALVE
GREEN
LIGHT
CENTRIFUGAL SWITCH
FAN
MOTOR
MOT
1
2
3
COM
2
1
3
29
30
30
4
6
11
18
18
15
15
26
17
17
5
4
5
6
7
8
7
8
27
28
9
10
10
9
11
12
12
13
13
14
14
16
16
19
19
32
32
25
25
24
YELLOW
BLUE
BLACK
WHITE
29
33
33
31
34
35
IGNITOR
THERMOSTAT
VALVE HOT
GROUND
FLAME SENSOR
L1-24VAC
8806657
8806659

Other manuals for Bakers Pride BCO-G1

Related product manuals