EasyManua.ls Logo

Baldor TS60 - Page 61

Baldor TS60
90 pages
Print Icon
To Next Page IconTo Next Page
To Next Page IconTo Next Page
To Previous Page IconTo Previous Page
To Previous Page IconTo Previous Page
Loading...
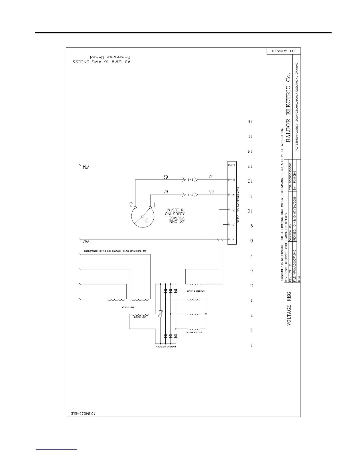
Wiring Diagrams A-13
MN2417
Figure A-12 TS35 Connection Diagram

Table of Contents