EasyManua.ls Logo

B&R PP41 - Digital Inputs and Outputs

B&R PP41
56 pages
Print Icon
To Next Page IconTo Next Page
To Next Page IconTo Next Page
To Previous Page IconTo Previous Page
To Previous Page IconTo Previous Page
Loading...
40 Power Panel User's Manual
Power Panel • Description of Components
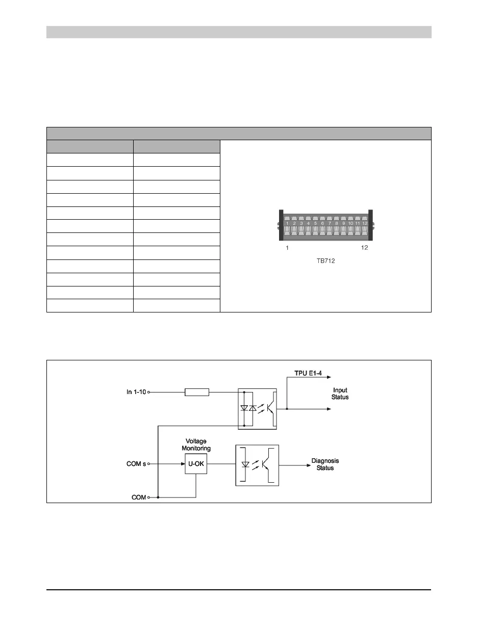
12.10 Digital Inputs
12.10.1 Terminal Block Connections
Inputs 1 - 4 are equipped with additional functions (event counter, ABR evaluation, etc.). The
supply voltage for the digital inputs can be monitored with the application program.
12.10.2 Input Circuit Diagram
Digital inputs pin assignments
Connection Description
X2
1 Input 1
2 Input 2
3 Input 3
4 Input 4
5 Input 5
6 Input 6
7 Input 7
8 Input 8
9 Input 9
10 Input 10
11 +24 VDC
12 GND
Table 21: Digital inputs pin assignments
Figure 18: Digital inputs - input circuit diagram

Table of Contents

Related product manuals