EasyManua.ls Logo

Barrett 940 - Tuner Front Panel PCB Schematic

Default Icon
164 pages
Print Icon
To Next Page IconTo Next Page
To Next Page IconTo Next Page
To Previous Page IconTo Previous Page
To Previous Page IconTo Previous Page
Loading...
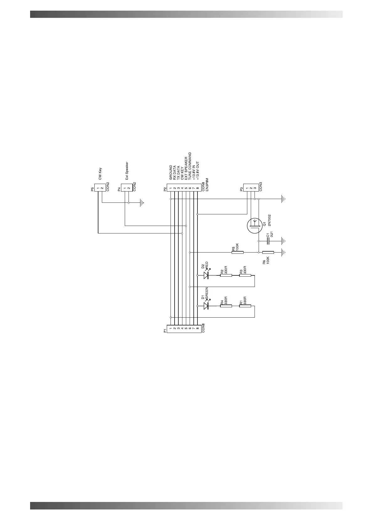
940 Tuner Front Panel PCB Schematic
BARRETT 900 SERIES TRANSCEIVERS
PAGE 149

Table of Contents

Related product manuals