EasyManua.ls Logo

Barrett 940 - Transceiver Cloning Cable Schematic

Default Icon
164 pages
Print Icon
To Next Page IconTo Next Page
To Next Page IconTo Next Page
To Previous Page IconTo Previous Page
To Previous Page IconTo Previous Page
Loading...
BARRETT 900 SERIES TRANSCEIVERS
PAGE 160
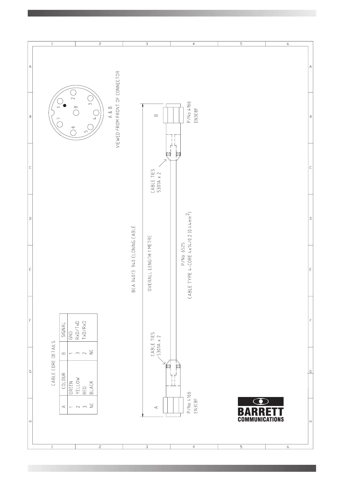
940 Transceiver Cloning Cable Schematic
940 Transceiver Cloning Cable Schematic

Table of Contents

Related product manuals