EasyManua.ls Logo

Baumatic BDWI440 - Page 33

Baumatic BDWI440
44 pages
Print Icon
To Next Page IconTo Next Page
To Next Page IconTo Next Page
To Previous Page IconTo Previous Page
To Previous Page IconTo Previous Page
Loading...
33
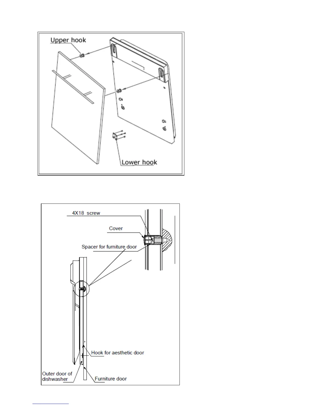
rk
o Attach the upper
o Attach the lower
to
the slots on the
outside of the
dishwasher door.
the
covers that are
sure that you
screw them tightly
e
door.
o Replace the covers.
o Use the installation template supplie
up and then drill out the necessary
d with the appliance to ma
holes in the furniture door.
hooks onto the
furniture door.
hooks onto the
furniture door.
o Lift the furniture
door towards the
dishwasher door,
ensuring that the
upper and lower
hooks locate in
o Push the furniture door downwards
dishwasher door.
so it locks into place on the
o Open the dishwasher
door and find
located on either side
of the outer edge.
o Fully tighten the
screws into the holes.
Make
into the furnitur

Related product manuals