EasyManua.ls Logo

Baumatic QF9SS - Using Your Baumatic Cooker Hood

Baumatic QF9SS
24 pages
Print Icon
To Next Page IconTo Next Page
To Next Page IconTo Next Page
To Previous Page IconTo Previous Page
To Previous Page IconTo Previous Page
Loading...
7
To use your cooker hood:
1) Make sure it has been properly installed.
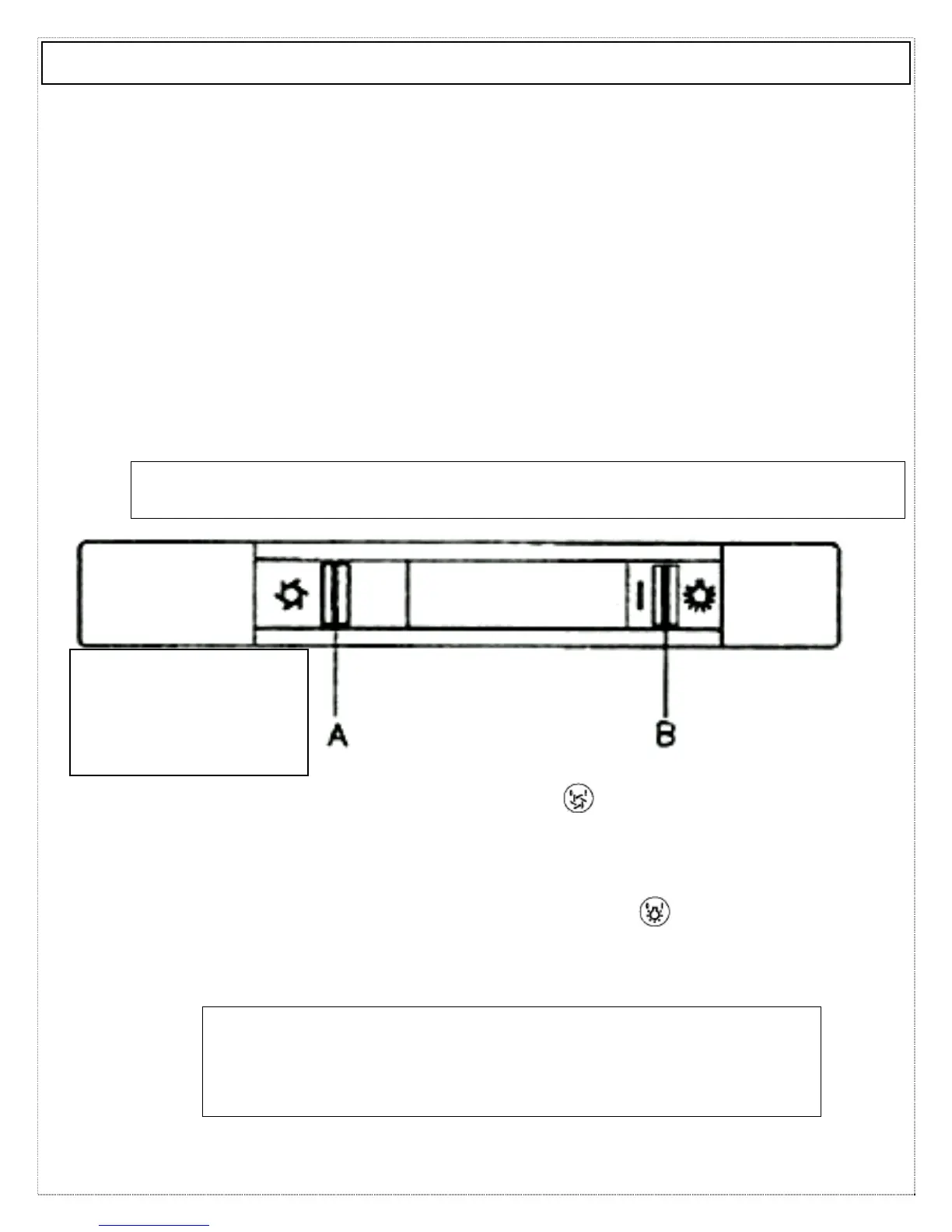
2) Find the CONTROL PANEL. It is located at the bottom of the
hood on the underside, at the front of the canopy.
3) The CONTROL PANEL contains switches as shown in the Figure
below. These perform separate functions. You will need to
understand what both switches do before you attempt to use your
cooker hood.
* Note: The hood should be switched on at least as soon as you start
cooking.
A) MOTOR ON /OFF switch – the ‘ ’ switch (‘A’ in
figure above) turns the motor on and off and adjusts
its speed. There are three speeds.
B) LIGHT ON/OFF switch - Pressing the ‘
’ switch (‘B’
in figure above) turns your cooker hood’s light on
and off.
PLEASE NOTE THAT YOUR BAUMATIC COOKER HOOD CAN BE
USED EITHER IN RECIRCULATION MODE OR IN EXTRACTION
MODE. TO USE THE EXTRACTOR IN RE-CIRCULATION MODE,
YOU WILL NEED TO FIT THE CARBON FILTERS.
Usin
g
y
our Baumatic Cooker Hood:
* THE CONTROL PANEL
CAN BE FOUND ON THE
UNDERSIDE AT THE
FRONT OF THE COOKER
HOOD’S BOTTOM.

Related product manuals