EasyManua.ls Logo

Bellfires Derby - Electrical Diagram

Default Icon
99 pages
Print Icon
To Next Page IconTo Next Page
To Next Page IconTo Next Page
To Previous Page IconTo Previous Page
To Previous Page IconTo Previous Page
Loading...
69
Bellfires
English
Instructions for use and installation instructions
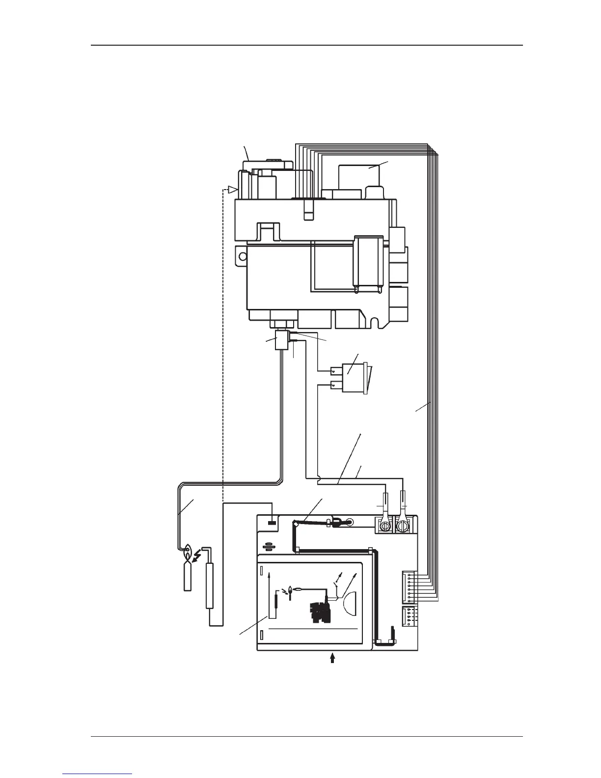
6 ELECTRICAL DIAGRAM
6.1 MODELS WITH REMOTE CONTROL
Thermo-
couple
Ignition cable
Antenna
Button “Reset”
Motor-
knob
Operating-Knob
O I” Switch
Gas regulating block
RECEIVER
Battery
Compartment
panel
4 AA Batteries
cable 2
cable 1
“red”
“black”
SPARK
SPARK
SW TC
SW TC
GR
SW
MA
MO
Pilot
ON/OFF Switch
Thermocurrent
interrupter Block
“red”
“yellow”
Thermo -
current
Interrupter
Block
8 Wire Connecting
Cable

Related product manuals