EasyManua.ls Logo

Belling BI 60G - Page 21

Belling BI 60G
40 pages
Print Icon
To Next Page IconTo Next Page
To Next Page IconTo Next Page
To Previous Page IconTo Previous Page
To Previous Page IconTo Previous Page
Loading...
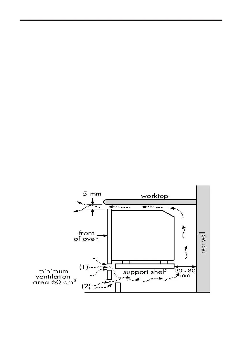
INSTALLATION - 60CM
i) When installed in a typical 600mm
deep built in housing unit, the false back
should be removed from the housing unit
to provide the necessary depth for instal-
lation.
ii) When the false back is removed, it is
normally the case that the support shelf
for the appliance leaves a gap between
the back edge and the wall of approxi-
mately 80mm.
iii) If no gap occurs between the back
edge of the shelf and the wall behind the
unit, we recommend that a gap of at least
30mm is made by shortening the shelf.
iv) When installing the appliance below a
worktop, there must be a minimum venti-
lation area of 60cm2 below the appliance,
in either area (1) or (2), as indicated be-
low. There must be a 5mm gap between
the front top edge of the oven and the
underside of the worktop.
Important:
Do not modify the outer pan-
els of this appliance in any way.
Ensure that you route all mains electri-
calcablesandexibletubingwellclear
of any adjacent heat source, such as an
oven, grill or hob.
Ensure that all pipe work is of the correct
rating for both size and temperature.
Installing the appliance under a
worktop
Where the appliance is installed under a
worktop, with a hob installed above it,
the installation instructions for the hob
must be read in conjunction with these
instructions.

Related product manuals