EasyManua.ls Logo

Bennett 3700 Series - Page 72

Bennett 3700 Series
90 pages
Print Icon
To Next Page IconTo Next Page
To Next Page IconTo Next Page
To Previous Page IconTo Previous Page
To Previous Page IconTo Previous Page
Loading...
72
120001 Rev K 1-19-18
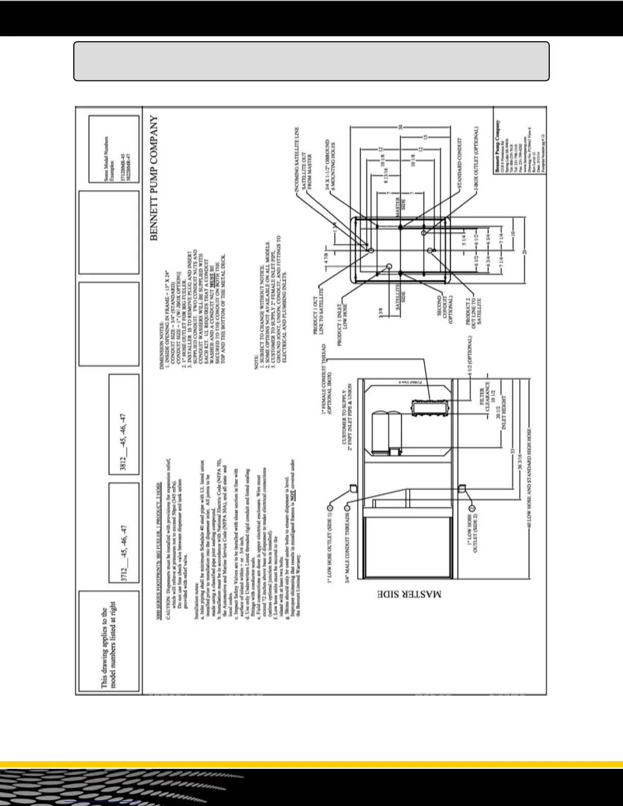
3000 Series Footprint Drawings
Big Fueler - Low Hose Remote Master Models 1 Product 2 Hose
Note: Drawing schematic P1384s3 View 6 (Part Number 110227) can be found on the USB provided.

Table of Contents

Related product manuals