EasyManua.ls Logo

Bertazzoni REF36FDFZXNT - Principaux Composants; Vue Densemble de Lappareil

Bertazzoni REF36FDFZXNT
85 pages
Print Icon
To Next Page IconTo Next Page
To Next Page IconTo Next Page
To Previous Page IconTo Previous Page
To Previous Page IconTo Previous Page
Loading...
44
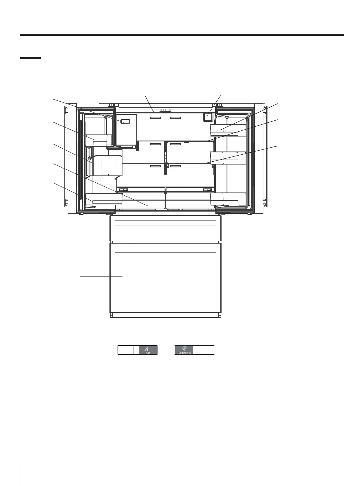
3.1 Principaux composants
3. VUE D’ENSEMBLE DE LAPPAREIL
Bac à glaçons
Éclairage LED Filtre à eau
Bac de
rangement de
la porte
Bac de
rangement de
la porte
Clayette
coulissante
Distributeur de
glaçons/ eau
Clayette
Bacs à légumes
à humidité
contrôlée
Bac de
rangement de
la porte
Bac Flex
Bac du congélateur
CONTRÔLE DE L’HUMIDITÉ DES BACS À LÉGUMES

Table of Contents

Other manuals for Bertazzoni REF36FDFZXNT

Related product manuals