EasyManua.ls Logo

Bertazzoni REF36FDFZXNT - Apariencia General; Componentes Principales

Bertazzoni REF36FDFZXNT
85 pages
Print Icon
To Next Page IconTo Next Page
To Next Page IconTo Next Page
To Previous Page IconTo Previous Page
To Previous Page IconTo Previous Page
Loading...
72
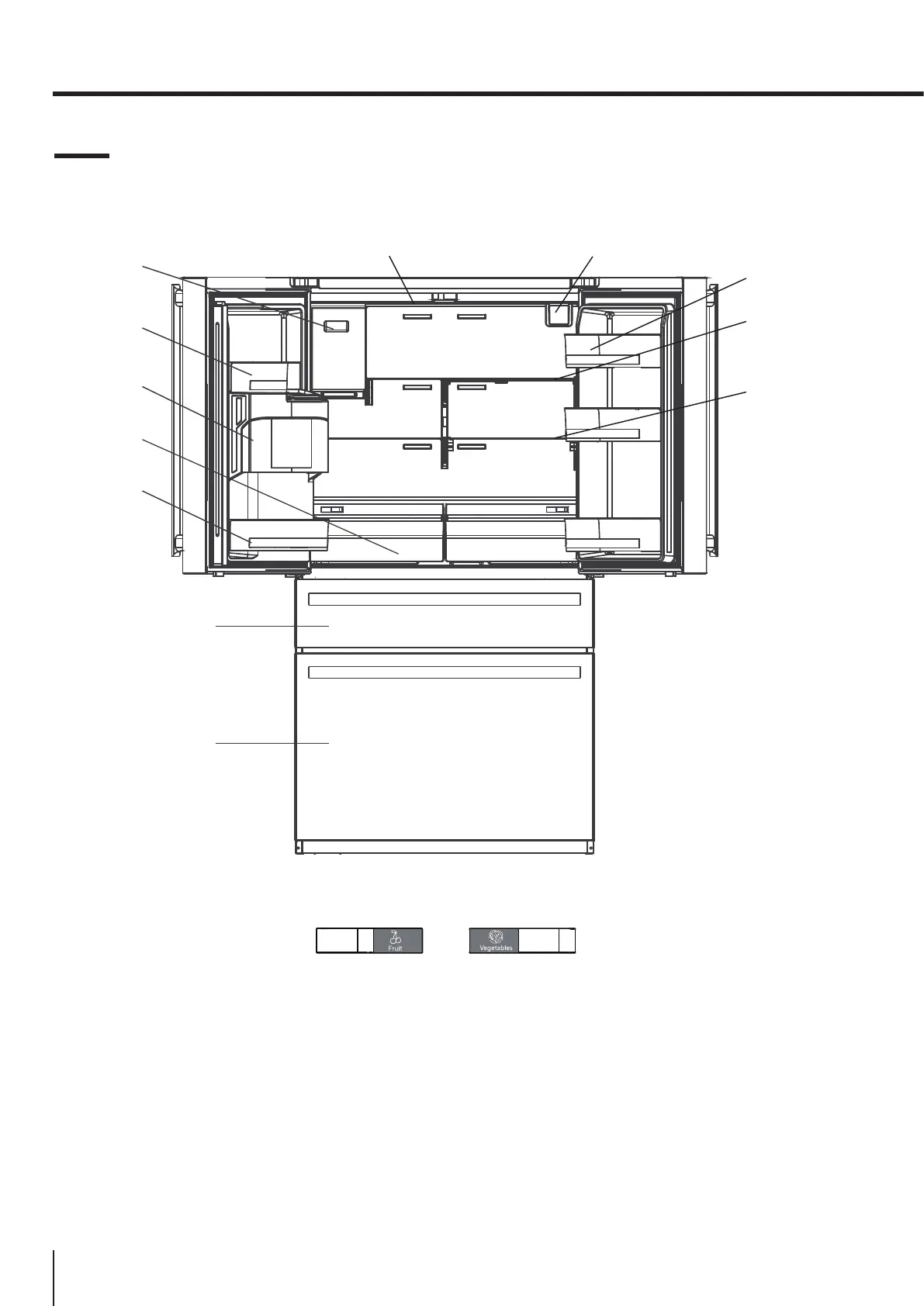
3.1 Componentes principales
3. APARIENCIA GENERAL
Cubeta de la
máquina de hielo
Iluminación LED Filtro de agua
Contenedor
en puerta
Contenedor
en puerta
Repisa
insertable
Dispensador
de hielo y agua
Repisa
Humidity
Cajones con control
de la humedad
Contenedor
en puerta
Cajón Flex
Cajón del
congelador
CONTROL DE LA HUMEDAD PARA CAJONES

Table of Contents

Other manuals for Bertazzoni REF36FDFZXNT

Related product manuals