EasyManua.ls Logo

BFT KR92522800003 - Page 3

BFT KR92522800003
20 pages
Print Icon
To Next Page IconTo Next Page
To Next Page IconTo Next Page
To Previous Page IconTo Previous Page
To Previous Page IconTo Previous Page
Loading...
ITALIANO ENGLISH
FRANÇAIS
DEUTSCH
ESPAÑOL
NEDERLANDS
G
AUX 3 = 0
AUX 3 = 2
AUX 3 = 3
AUX 3 = 4
AUX 3 = 5
AUX 3 = 6
AUX 3 = 7
AUX 3 = 8
AUX 3 = 9
AUX 3 = 10
AUX 0 = 0
AUX 0 = 2
AUX 0 = 3
AUX 0 = 4
AUX 0 = 5
AUX 0 = 7
AUX 0 = 8
AUX 0 = 9
AUX 0 = 10
AUX 0 = 6 AUX 3 = 1
21
24 V
SCA
!
24V
20 21
AUX0 - 24V
(MAX 1A)
20 21
26 27
!
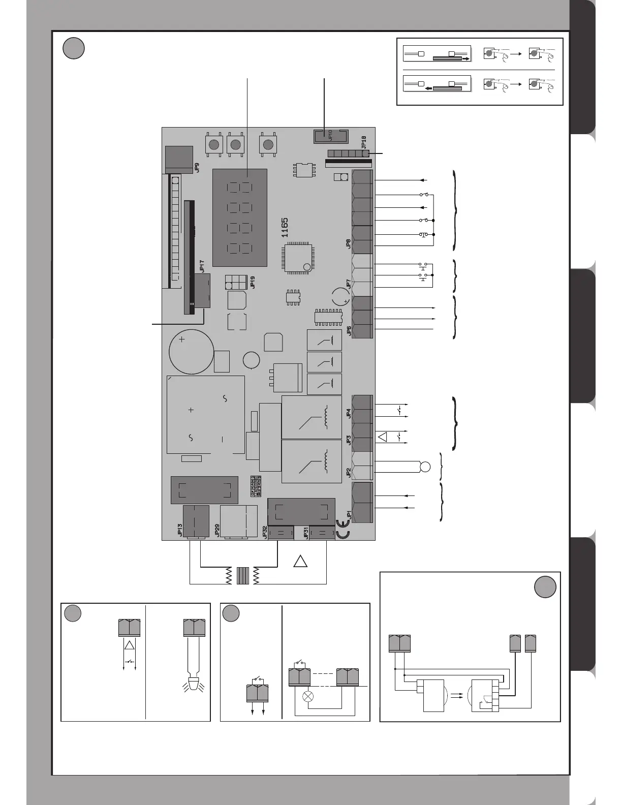
Connettore programmatore palmare,
Palmtop programmer connector,
Connecteur programmateur de poche,
Steckverbinder Palmtop-Programmierer,
Conector del programador de bolsillo,
Connector programmeerbare palmtop.
Connettore scheda opzionale,
Optional board connector,
Connecteur carte facultative,
Steckverbinder Zusatzkarte,
Conector de la tarjeta opcional,
Connector optionele kaart.
Display + tasti programmazione,
Display plus programming keys,
Acheur et touches de programmation,
Display und Programmierungstasten,
Pantalla mas botones de programacion,
Display meerdere toetsen programmeur.
Connettore necorsa
Limit switch connector
Connecteur de n de course
Steckverbindung Endschalter
Conector nal de carrera
Connector eindaanslag
F3 1,25A T
F1 0,63A T (220-230V
F1 1,6A T (120V)
10L N 11 20 21 26 27 50 51 52 60 61 62 70 71 72 73 74 75
Alimentazione / Power supply
Alimentation / Stromversorgung
Alimentación /Voeding
L
N
220-230V ~
*
M1
+
-
Motore / Motor / moteur
Motor /Eindaanslag/Encoder
AUX 3
(MAX 24V 1A)
AUX
24V -
24V +
24 VSafe+
COM
IC 1
IC 2
NO
NO
Alimentazione accessori
Accessories power supply
Alimentation des accessoires
Stromversorgung Zubehör
Alimentación accesorios
Voeding accessoires
Comandi / Commands
Commandes/Bedienelemente
Mandos/ Commando's
SAFE 1
STOP
COM
FAULT 1
SAFE 2
FAULT 2
NC
NC
NC
Sicurezze
Safety devices
Sécurités
Sicherheitsvorrichtungen
Dispositivos de seguridad
Veiligheden
S1
S2
S3
+
-
OK
24V~
220-230V~*
H
JP3
24V
Collegamento di 1 coppia di fotocellule non vericate,
Connection of 1 pair of non-tested photocells,
Connexion 1 paire photocellules no vériées,
Anschluss von einem Paar nicht überprüften Fotozellen,
Conexión de 1 par fotocélulas no comprobadas,
Aansluiting van 1 paar fotocellen anders dan “trusted device”.
2
1
TX1
2
1
RX1
4
5
3
SAFE 1 = 0
24V
!
AUX 0 - 24V
(MAX 1A)
24V
26 27 50 51
50 51
70 72
OPEN
CLOSE
S1
S2
+
S1
+
-
S2
-
X1
X1 X1
X1
OPEN
CLOSE STOP
STOP
**Con logica inversione direzione di apertura = 000 (DIR=DX) / **With reverse logic, opening direction = 000 (DIR=right)
** Avec logique inversion direction d’ouverture = 000 (DIR=DRT) / **Mit Inversionslogik Ö nungsrichtung = 000 (DIR=rechts)
**Con lógica inversión dirección de apertura = 000 (DIR=DER) / **Met logica omkering openingsrichting = 000 (DIR=R)
**
DEIMOS ULTRA BT A 400 - DEIMOS ULTRA BT A 600 - 3
D811980 00100_01

Related product manuals