EasyManua.ls Logo

BFT KR92522800003 - Page 6

BFT KR92522800003
20 pages
Print Icon
To Next Page IconTo Next Page
To Next Page IconTo Next Page
To Previous Page IconTo Previous Page
To Previous Page IconTo Previous Page
Loading...
E
Q
R
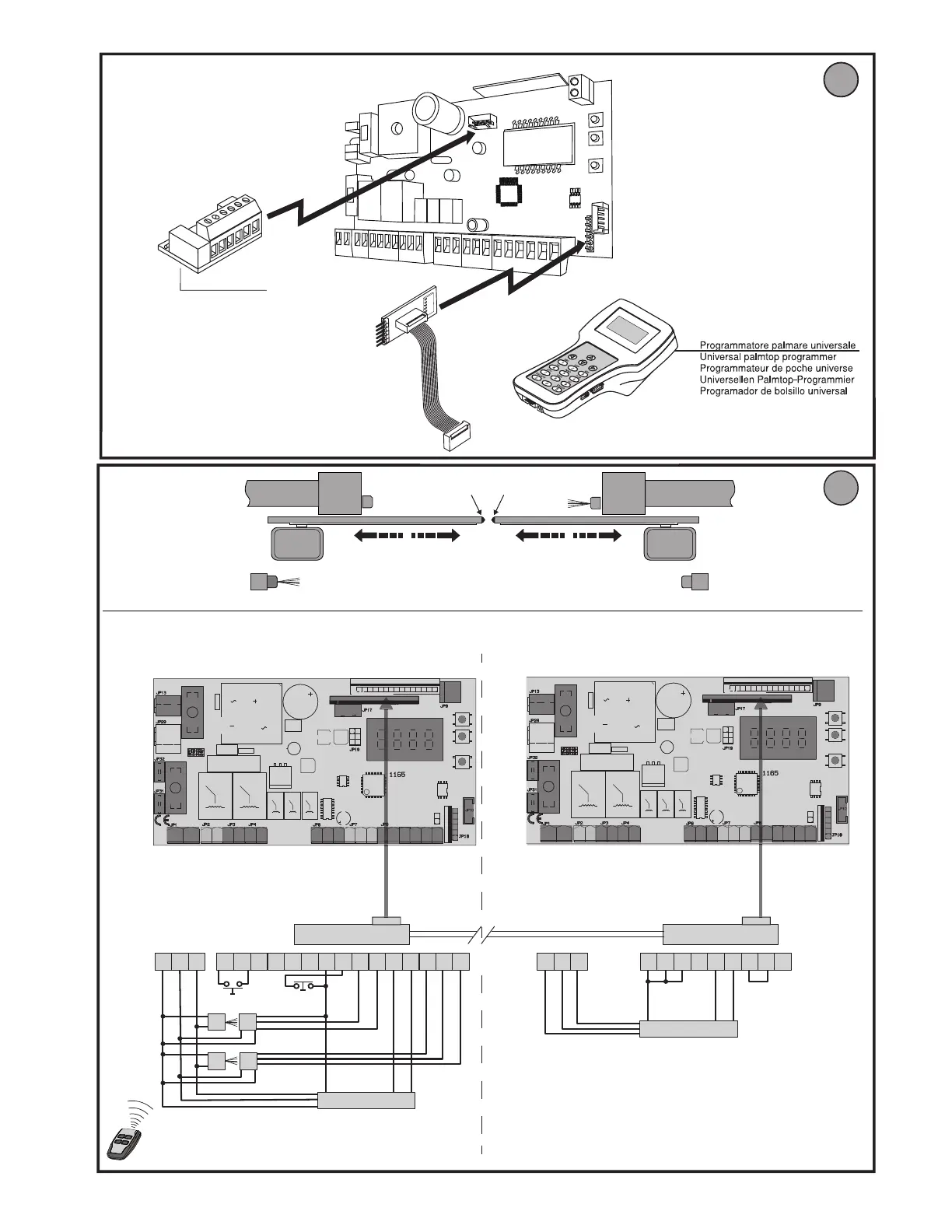
SCHEDA DI ESPANSIONE
EXPANSION BOARD
CARTE D’EXPANSION
ERWEITERUNGSKARTE
TARJETA DE EXPANSIÓN
UITBREIDINGSKAART
UNIDA
Programmeerbare Universele Palmtop
TX1 (PHOT)
RX1 (PHOT)
CC1
(BAR)
CC2
(BAR)
TX2 (PHOT)
RX2 (PHOT)
M2
SLAVE
M1
MASTER
iNDIRIZZO=0
address=0
adresse=0
adresse=0
direccion=0
modo seriale=3
serial mode=3
mode serie=3
serieller modus=3
modo seria=3
iNDIRIZZO=0
address=0
adresse=0
adresse=0
direccion=0
modo seriale=2
serial mode=2
mode serie=2
serieller modus=2
modo seria=2
B EBA U-LINK 485
50 51 52
CC2
70 71 72 73 74 75 76 77 78
SAFE 1 = 1
SAFE 2 = 7
SAFE 3 = 1
SAFE 2 = 7
50 51 52 6160
TX1 RX1
TX2
CC1
RX2
62 63 64 65 70 71 72 73 74 75 76 77 78
START
STOP
MAX 250m
ESEMPIO APPLICAZIONE ANTE CONTRAPPOSTE CON 2 PHOT E 2 BAR - SAMPLE APPLICATION WITH OPPOSITE LEAVES WITH 2 PHOT AND 2 BAR -
EXEMPLE D’APPLICATION VANTAUX OPPOSÉS AVEC 2 PHOT ET 2 BAR - ANWENDUNGSBEISPIEL EINANDER ENTGEGENGESETZTE TORFLÜGEL MIT 2
PHOT UND 2 BAR - VOORBEELD TOEPASSING TEGENOVERGESTELDE VLEUGELS MET 2 PHOT EN 2 BAR
B EBA U-LINK 485
F3
F1
10L N 11 20 21 26 27 50 51 52 60 61 62 70 71 72 73 74 75
S1
S2
S3
+
-
OK
F3
F1
10L N 11 20 21 26 27 50 51 52 60 61 62 70 71 72 73 74 75
S1
S2
S3
+
-
OK
70
8888
DEIMOS ULTRA BT A 400 - DEIMOS ULTRA BT A 600 - 11
D811980 00100_01

Related product manuals