EasyManua.ls Logo

BGH BMPE36CTL - Page 26

BGH BMPE36CTL
32 pages
Print Icon
To Next Page IconTo Next Page
To Next Page IconTo Next Page
To Previous Page IconTo Previous Page
To Previous Page IconTo Previous Page
Loading...
26
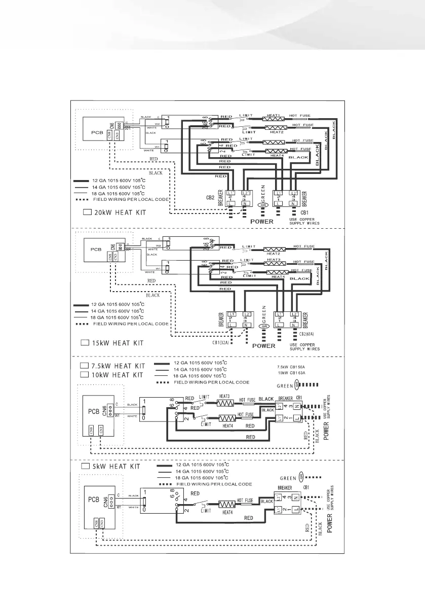
Fig 10 Indoor Unit Wiring Diagram for Electric Heat.