EasyManua.ls Logo

Bio Bronpi HYDROBOX - Page 49

Bio Bronpi HYDROBOX
Print Icon
To Next Page IconTo Next Page
To Next Page IconTo Next Page
To Previous Page IconTo Previous Page
To Previous Page IconTo Previous Page
Loading...
48
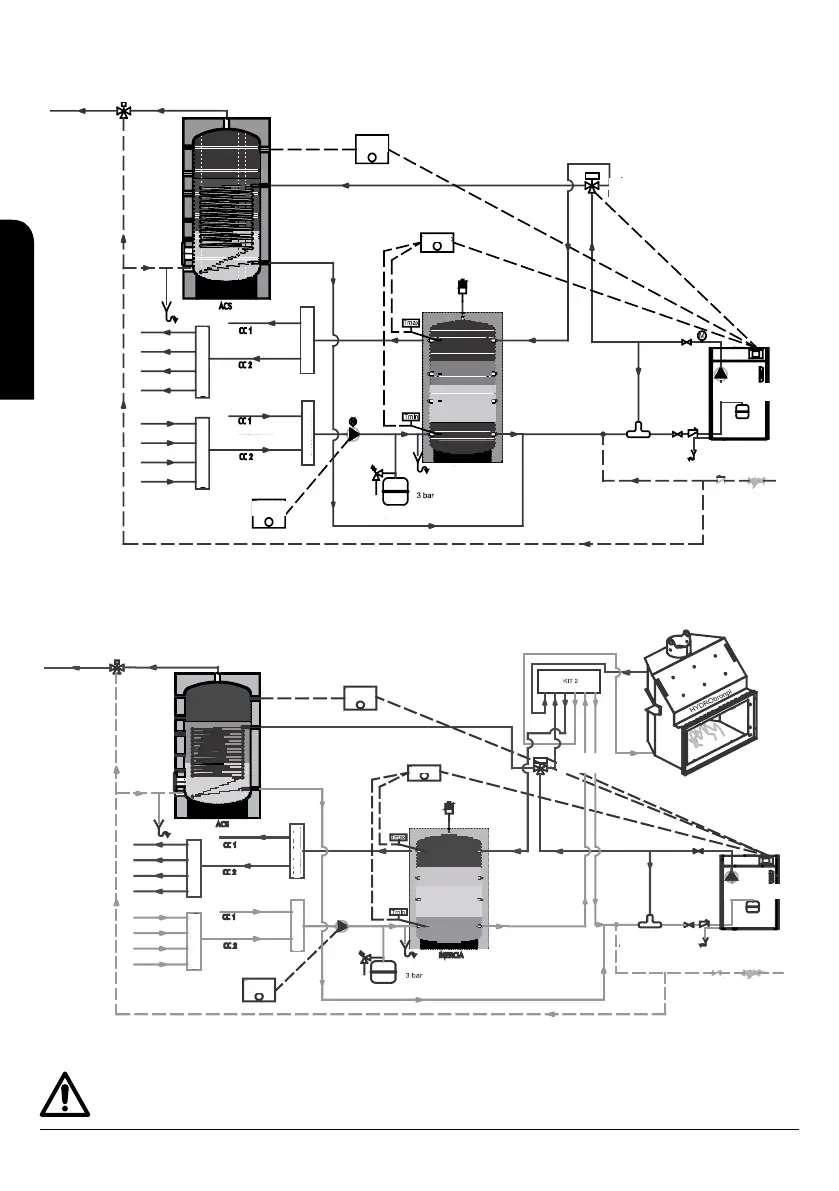
Boiler + Buffer tank + SHW Accumulation Tank + Radiator Circuit / Floor heating circuit
Coletor quente
Coletor frio
Termostato
casa
SHW
consumption
Thermostatic
valve
SHW
THERMOSTAT
Diverter
valve
Thermostat
Underfloor heating
collector
Underfloor heating
collector
Radiators
Radiators
Underfloor heating
Underfloor heating
Inertia
Expansion
General plumbing
connection
Anti-condensation
valve
General plumbing
connection
Circulating pump and
expansion vessel included
Boiler + HydroBronpi Boiler + Buffer tank + SHW Accumulation Tank + Radiator Circuit / Floor heating circuit
SHW
consumption
Thermostatic
valve
Underfloor heating
collector
Underfloor heating
collector
Radiators
Radiators
Underfloor heating
Underfloor heating
Home
thermostat
Cold collector
Hot collector
SHW
THERMOSTAT
Thermostat
Expansion
General plumbing connection
Anti-condensation
valve
General plumbing
connection
Circulating pump and
expansion vessel included
Diverter
valve
It is compulsory that each installation is equipped with a back end protection valve (thermal shock valve)to permit uniform
temperatures at the start up of the boiler and to avoid condensation inside the combustion chamber. Bronpi approved
Distributors can supply such a valve.
EN
INSTALLATION, OPERATING AND SERVICING INSTRUCTIONS HYDROBOX, HYDROTEX AND HYDROCONFORT

Table of Contents