EasyManua.ls Logo

Bitzer CSH7553-70Y - 5 Montage; Verdichter Transportieren

Bitzer CSH7553-70Y
124 pages
Go to English
To Next Page IconTo Next Page
To Next Page IconTo Next Page
To Previous Page IconTo Previous Page
To Previous Page IconTo Previous Page
Loading...
SB-170-10 11
Bei Aufstellung in Bereichen niedriger Temperatur
kann es notwendig werden, den Ölabscheider zu
isolieren. Beim Anlauf des Verdichters sollte die
Öltemperatur, unter dem Ölschauglas gemessen,
15 .. 20 K über der Umgebungstemperatur liegen.
Automatische Sequenzumschaltung bei Anlagen
mit mehreren Kältemittelkreisläufen (etwa alle 2
Stunden).
Zusätzliches Rückschlagventil in die Druckgaslei-
tung einbauen, falls auch über lange Stillstands-
zeiten kein Temperatur- und Druckausgleich er-
reicht wird.
Ggf. zeit- und druckabhängig gesteuerte Abpump-
schaltung oder saugseitige Flüssigkeitsabschei-
der einbauen – insbesondere bei großen Kältemit-
telfüllmengen und/oder wenn der Verdampfer
wärmer werden kann als die Sauggasleitung oder
der Verdichter.
Weitere Hinweise auch zur Rohrverlegung siehe
Handbuch SH-170.
Information
Bei Kältemitteln mit niedrigem Isentropenexpo-
nent (z.B. R134a) kann sich ein Wärmeübertra-
ger zwischen Sauggas- und Flüssigkeitsleitung
positiv auf Betriebsweise und Leistungszahl der
Anlage auswirken.
Temperaturfühler des Expansionsventils wie
oben beschrieben anordnen.
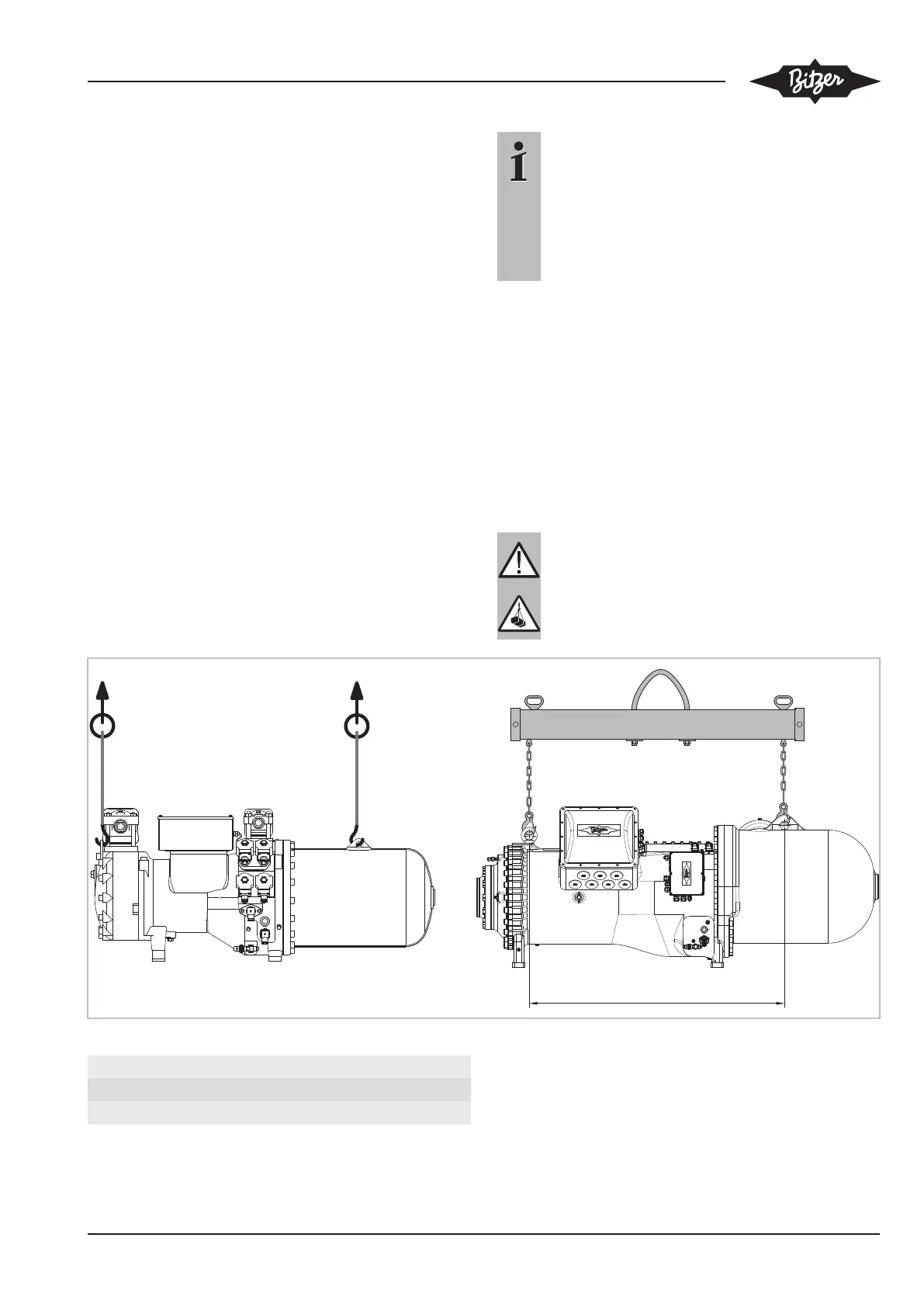
5 Montage
5.1 Verdichter transportieren
Verdichter entweder verschraubt auf der Palette trans-
portieren oder an Transportösen anheben, CS.9. und
CS.105 nur mit Traverse anheben, siehe Abbildung 1,
Seite 11.
Gewicht 1200..1900 kg (je nach Typ)
GEFAHR
Schwebende Last!
Nicht unter die Maschine treten!
X
Abb.1: Verdichter anheben. Links CS.6. .. CS.8., rechts CS.9. und CS.105
X (mm)
CS.9. 1150
CS.105 1448

Table of Contents

Related product manuals