EasyManua.ls Logo

Bitzer CSH8563-125Y - Page 101

Bitzer CSH8563-125Y
124 pages
Go to English
Print Icon
To Next Page IconTo Next Page
To Next Page IconTo Next Page
To Previous Page IconTo Previous Page
To Previous Page IconTo Previous Page
Loading...
SB-170-10 101
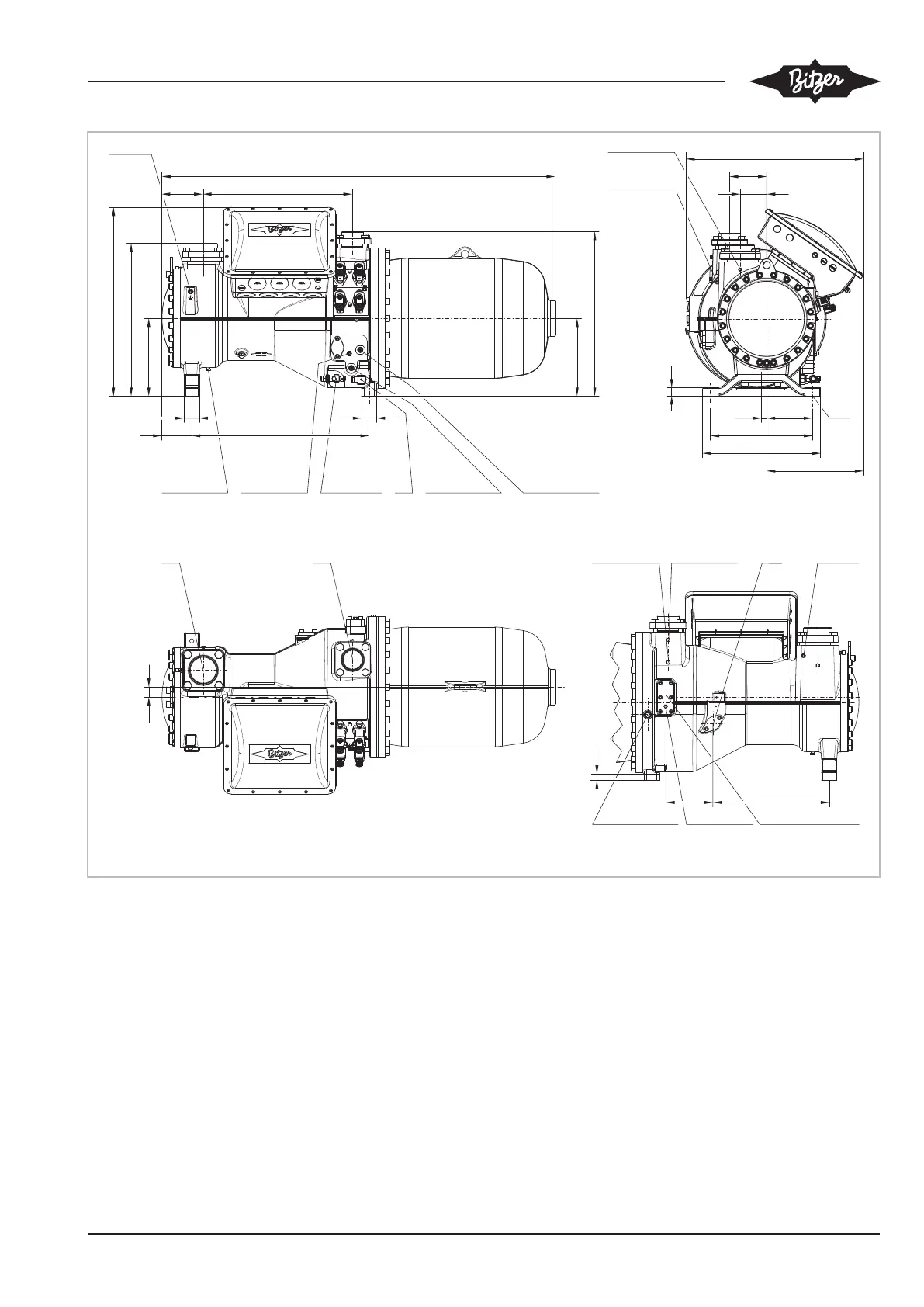
Fig.10: Croquis coté CSH8553-80Y .. CSH8593-180(Y)
Légende pour les raccords voir tableaux 8, page 108.

Table of Contents

Related product manuals